PONT EVEQUE PROCHE CENTRE - T4 - 87m² - 2018 - TERRASSE ET GARA
Pont-Évêque 38780
0
Honoraires à la charge du vendeur.
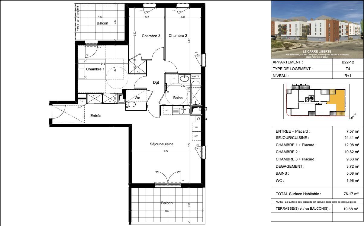
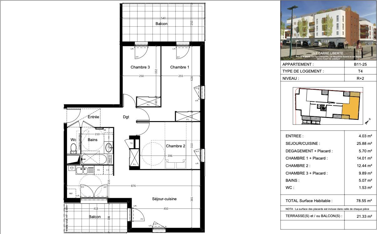
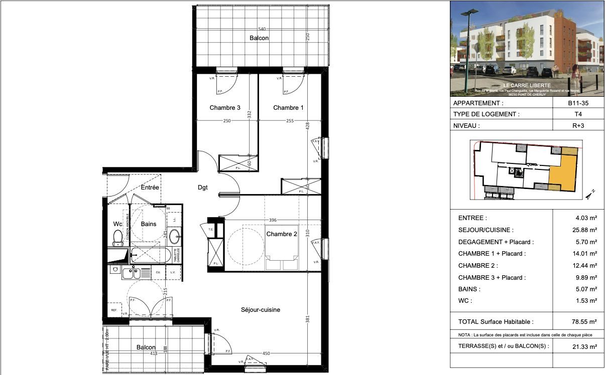
Appartement T4 Lumineux et Spacieux avec Terrasse - Excellent État Découvrez ce magnifique appartement T4 de 87 m², situé au 4ème étage d'un immeuble de standing construit en 2018, tout proche du centre de Pont-Evêque.
Profitez d'une vue imprenable sur les collines environnantes et d'une exposition Est-Ouest qui baigne les pièces de lumière naturelle toute la journée.
Cet appartement, en excellent état, comprend une pièce de vie de 40 m², trois chambres confortables dont deux avec placard (10,5m², 10,7m², 11,3m²), une cuisine américaine aménagée et équipée, une salle d'eau moderne avec douche à l'italienne (6,8m²), et un WC indépendant. Une belle terrasse de 24m² sans vis-à-vis et avec vue dégagée complète le bien.
Un garage de 13m² est compris dans le prix de vente. L'appartement est climatisé dans la pièce de vie et dispose de la fibre.
L'immeuble est conforme aux normes PMR et dispose d'un ascenseur pour un accès facile. Les fenêtres en PVC avec double vitrage assurent une isolation thermique et phonique optimale. Les parties communes sont également en excellent état.
Caractéristiques techniques : - Chauffage gaz individuel - Equipé en climatisation réversible - Construction 2018 avec isolation extérieure - Fenêtres PVC double vitrage avec volets roulants manuels - Terrasse 24m² et garage 13m² - Charge de copropriété de 400/trimestre - Taxe foncière = 1464
Les commodités à proximité sont nombreuses : à seulement 5 minutes à pied, vous trouverez un arrêt de bus, une alimentation générale et un restaurant. En 10 minutes à pied, vous accéderez à deux maternelles et une école élémentaire. Plusieurs parcs et jardins sont accessibles en 10 minutes en voiture, ainsi qu'un hôpital et un médecin généraliste. Trois collèges sont également à 5 minutes en voiture.
Ne manquez pas cette opportunité de vivre dans un appartement moderne et bien situé. Contactez-nous dès maintenant pour une visite !
Honoraires à la charge du vendeur. Dans une copropriété de 27 lots. Quote-part moyenne du budget prévisionnel 1 600 /an. Aucune procédure n'est en cours. Classe énergie C, Classe climat C Montant estimé des dépenses annuelles d'énergie pour un usage standard : entre 870.00 et 1260.00 sur les années 2021, 2022 et 2023 (abonnements compris). Les informations sur les risques auxquels ce bien est exposé sont disponibles sur le site Géorisques : georisques.gouv.fr.