Port de Perros, résidence standing, Grand T3 avec jardin
Perros-Guirec 22700
0
Honoraires à la charge du vendeur.
53 Rue Ernest Renan, Petite Résidence de Standing livrée printemps 2026, Travaux en cours - visitable.
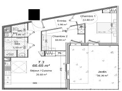
T3 au rez de chaussée avec jardin Parking et cuisine inclus
Parquet contrecollé dans les chambres, carrelage 45*45 et faïence, wc suspendus, volets roulants électriques, receveur douche extra-plat, chaudière gaz individuelle, logement connecté, placards aménagés, baies vitrées alu coulissantes.
Port et Commerces à pied. En lot arrière de la rue Ernest Renan, au calme.
Plus de photos, vues drone, maquettes, vues aériennes sur rdv visio ou sur site. Nous Consulter
Honoraires à la charge du vendeur. Non soumis au DPE. Les informations sur les risques auxquels ce bien est exposé sont disponibles sur le site Géorisques : georisques.gouv.fr.
Votre conseiller MON BIEN A LA MER : Gérant - .fr MON BIEN A LA MER Carte T CPI 2201 2018 000 025 040 RCP ACM IARD B1 7025278
66.65 m²
4 936 €
29 m²
3
2
1
1 (séparé)
Oui
1
Contact mon bien à la mer
Contacter gratuitement à l'aide du formulaire ci-dessous.