Port de Perros, résidence standing, T3 traversant avec grande t
Perros-Guirec 22700
0
Honoraires à la charge du vendeur.
MON BIEN A LA MER, spécialiste de l'immobilier neuf sur les côtes bretonnes, vous présente :
Petite résidence de standing en cours de finition sur le Port de Perros Guirec. Tous commerces à pied, en retrait de la rue, livrée printemps-été 2026. Frais de notaire réduits.
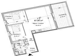
Spacieux T3 traversant au 1er étage en fond de résidence offrant : - Grande terrasse de 2,88m de profondeur sur 6,07m. - Deux chambres 11,85-11,45m2 - Séjour 30,2m2 - Salle d'eau douche à l'italienne sèche serviette wc 5,5m2 - Entrée + dégagement + placards 10m2 - Cuisine (meubles haut+bas+plaque de cuisson et hotte (possibilité de l'enlever avec moins value) Parking
Prestations standing : Parquet dans les chambres, carrelage grand format et faïence, wc suspendus, volets roulants électriques, receveur douche extra-plat, chaudière gaz individuelle, logement connecté, placards aménagés, baies vitrées alu coulissantes.
Nous Consulter pour visites.
Honoraires à la charge du vendeur. Dans une copropriété de 22 lots. Aucune procédure n'est en cours. Non soumis au DPE. Les informations sur les risques auxquels ce bien est exposé sont disponibles sur le site Géorisques : georisques.gouv.fr.
Votre conseiller MON BIEN A LA MER : Gérant - .fr MON BIEN A LA MER Carte T CPI 2201 2018 000 025 040 RCP ACM IARD B1 7025278
67.95 m²
5 004 €
30 m²
3
2
1
1
1 sur 3
Oui
1
1
Oui
Oui (22 lots)
Contact mon bien à la mer
Contacter gratuitement à l'aide du formulaire ci-dessous.