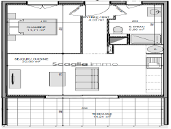
L'agence Scaglia Immo, vous propose à la vente ce bel appartement de type 2 situé au rez-de-chausée dans la nouvelle résidence ' Les hauts de capitello'. Idéalement située à l'entrée de Porticcio dominant la baie d'Ajaccio. Il se compose d'une entrée, d'un séjour ouvert sur la cusine donnant accés à une belle terrasse ,d'une chambre, d'une salle d'eau et d'un wc. Les atouts du bien :
Carrelage 60*60. Menuiseries aluminium. Frais de notaire réduits. Éligible au dispositif Pinel : Investissez en toute sérénité et bénéficiez des avantages fiscaux du dispositif Pinel pour optimiser votre investissement immobilier. Garages disponibles en supplément.
Les informations sur les risques auxquels ce bien est exposé sont disponibles sur le site Géorisques : www.georisques.gouv.fr Les informations sur les risques auxquels ce bien est exposé sont disponibles sur le site Géorisques : www.georisques.gouv.fr
43.29 m²
6 584 €
22 m²
2
1
1
1
10/06/2026
1
Oui
Oui
Oui (78 lots)
Contact SCAGLIA Ludovic
Contacter gratuitement à l'aide du formulaire ci-dessous.