Prenez de la hauteur : F3 avec vue panoramique exceptionnell
Évreux 27000
0
Coup de coeur sur les hauteurs d'Évreux : La tête dans les nuages ! Emplacement idéal : Tout à pied ! Situé au coeur d'Évreux, cet appartement de type F3 est la perle rare pour ceux qui veulent oublier la voiture. À deux pas de la gare (parfait pour vos trajets vers Paris !), de l'hyper-centre et de tous les commerces de proximité. Les points forts de ce nid douillet :
Une vue à couper le souffle : Situé au dernier étage, profitez d'une vue panoramique imprenable sur tout Évreux. Chaque soir, le coucher de soleil est pour vous !
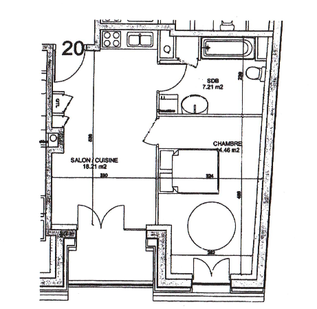
De beaux volumes : Un grand séjour baigné de lumière, idéal pour vos moments de détente ou vos soirées entre amis.
Espace nuit : 2 chambres confortables pour accueillir famille, amis ou un bureau pour le télétravail.
Fonctionnel : Une cuisine séparée et une salle de bain prête à l'emploi.
Le petit plus : Une cave privative en sous-sol, indispensable pour le stockage ou les vélos !
Le cadre de vie : Certes, il faudra monter quelques marches (dernier étage sans ascenseur), mais c'est le prix de la tranquillité absolue : personne au-dessus de votre tête et une luminosité qu'aucun voisin ne viendra gâcher ! Idéal pour :
Primo-accédants dynamiques.
Investisseurs (secteur gare très recherché).
Amoureux de la vie urbaine et des panoramas.
Prêt à prendre de la hauteur ? Ne laissez pas cette vue vous échapper. DPE/F GES/E Montant estimé des dépenses annuelles d'énergie pour un usage standard entre 1740 et 2410 EUR indexées aux années 2021, 2022 et 2023 (ou 2021 uniquement) (si logement F ou G 'Logement à consommation énergétique excessive : classe F ou G') Pour visiter et vous accompagner dans votre projet, contactez Benoît LEFEBVRE, au 0646468039 b.lefebvre@expertimo.com. Selon l'article L.561.5 du Code Monétaire et Financier, pour l'organisation de la visite, la présentation d'une pièce d'identité vous sera demandée. « Les informations sur les risques auxquels ce bien est exposé sont disponibles sur le site Géorisques : www.georisques.gouv.fr ». Certaines photos ont été retouchées par l'IA pour vous permettre de vous projeter. Mandat no101403
Cette annonce vous est proposée par LEFEBVRE Benoît - EI - NoRSAC: 432 404 747, Enregistré à Greffe du tribunal de commerce de Evreux - Annonce rédigée et publiée par un Agent Mandataire -
60 m²
1 533 €
4
Oui (60 lots)
Consommations énergétiques
Logement économe
334
Logement énergivore (kWhEP/m2/an)
Émissions de gaz à effet de serre
Faible émission de GES
65
Forte émission de GES(kgeqCO2/m2/an)
Contact Benoît LEFEBVRE
Contacter gratuitement à l'aide du formulaire ci-dessous.