PREVESSIN 01280, VILLA INDIVIDUELLE 165m2, 4 CHAMBRES + BURE
Prévessin-Moëns 01280
0
Honoraires à la charge du vendeur.
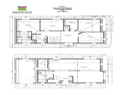
TRAVAUX EN COURS !!! Prevessin-Moens 01280, emplacement exceptionnel coeur du village dans une impasse au calme, très RARE, très belle villa individuelle de 165m2 habitables avec 4 chambres + 1 bureau, 3 salle d'eau, 2 WC, un cellier- buanderie, un grand garage et implantée sur une belle parcelle de jardin. L'emplacement est idéal car à 2 pas de toutes les commodités (arrêt du bus à pied, écoles / collège et commerces). Très belles prestations générales : chauffage au sol pompe à chaleur sur les 2 niveaux, classe énergétique excellent. N'hésitez pas à nous contacter pour tout complément d'information. 'Les informations sur les risques auxquels ce bien est exposé sont disponibles sur le site Géorisques http://www.georisques.gouv.fr'. MATESA IMMOBILIER, agence immobilière Pays de Gex, vente maison villa Prévessin-Moens 01280
165 m²
6 182 €
487 m²
6
4
1
2
2
2025
Sud
2
1
Consommations énergétiques
Logement économe
108
Logement énergivore (kWhEP/m2/an)
Émissions de gaz à effet de serre
Faible émission de GES
10
Forte émission de GES(kgeqCO2/m2/an)
Contact Matesa Immobilier
Contacter gratuitement à l'aide du formulaire ci-dessous.