PREVESSIN MOENS 01280 - VILLA INDIVIDUELLE 175m2 sur 742m2,
Prévessin-Moëns 01280
0
Honoraires à la charge du vendeur.
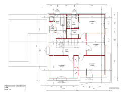
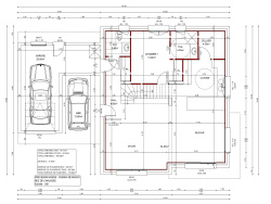
VILLA individuelle SITUEE A PREVESSIN MOENS 01280 MAIS TRES PROCHE FERNEY VOLTAIRE - RARE A LA VENTE, LIMITE FERNEY-VOLTAIRE 01210, UNE VILLA individuelle de 175m2 sur un terrain de 742m2 comprenant : RDC : une belle entrée avec un placard, une pièce de vie de 55m2 avec cuisine ouverte sur le salon séjour salle à manger avec accès direct au jardin, un cellier attenant à la cuisine, une chambre avec sa salle de douche privative, un wc visiteur avec un lave-main et fenêtre, un grand garage attenant à la maison et un abri voiture. A l'ETAGE : 4 grandes chambres dont une suite parentale avec son dressing et sa salle de douche privative avec avec wc et fenêtre, une autre salle de bains avec baignoire et douche et avec fenêtre, un grand dressing et un wc séparé. En Annexe : un grand garage fermé 1 voiture et un abri voiture couvert, places de parkings extérieures. Très belles prestations : stores électriques, faïence toute hauteur salle de bains, carrelage grand format, chauffage au sol pompe à chaleur, etc. Garantie décennale. Dossier complet sur demande. Non soumis au DPE. Réalisation par un promoteur local et réputé offrant une prestation complète et soignée. MATESA IMMOBILIER, agence immobilière spécialisée Pays de Gex, vente et achat maison Prévessin Moens 01280 'Les informations sur les risques auxquels ce bien est exposé sont disponibles sur le site Géorisques http://www.georisques.gouv.fr'.
175 m²
5 566 €
742 m²
5
4
1
2
3
2024
1
1
Contact Matesa Immobilier
Contacter gratuitement à l'aide du formulaire ci-dessous.