Proche commerces et plage, beau 5 pièces de 80,54 m2
Saint-Jean-de-Monts 85160
0
Honoraires à la charge de l'acquéreur (Prix hors honoraires : 210000 euros).
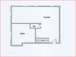
Quartier des Demoiselles proche plage et au coeur des commerces, vaste appartement lumineux de trois chambres, de 80.54 m2 (67.65 m2 carrez) . Entrée avec placard, vaste salon-séjour avec cuisine ouverte, (possibilité 3ème chambre), wc séparés. A l'étage, deux grandes chambres, salle de douches et second wc. Place de parking privative. Interphone - Double vitrage. Montant estimé des dépenses annuelles d'énergie pour un usage standard entre 1 080EUR et 1 540 EUR par an. Prix moyen des énergies indexé au 01/01/2021. Copropriété de 16 lots. Budget annuel syndic : 957 euros. Honoraires d'Agence Inclus: 5,48 % TTC à la charge de l'acquéreur. Prix net vendeur : 210 000 EUR. Les informations sur les risques auxquels ce bien est exposé sont disponibles sur le site Géorisques : www.georisques.gouv.fr - Annonce rédigée et publiée par un Agent Mandataire -
80.54 m²
2 750 €
37 m²
5
3
1
2
1 sur 1
5.48 %
1970
Nord
1
Oui (16 lots)
Consommations énergétiques
Logement économe
131
Logement énergivore (kWhEP/m2/an)
Émissions de gaz à effet de serre
Faible émission de GES
29
Forte émission de GES(kgeqCO2/m2/an)
Contact DESMARES Pierre-Olivier
Contacter gratuitement à l'aide du formulaire ci-dessous.