En co-exclusivité, maison individuelle au calme proche des commodités.
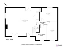
Découvrez cette maison de 121 m²(132m2 au sol), construite en 1988, offrant un cadre de vie exceptionnel et une exposition nord-sud pour un ensoleillement optimal. Cette propriété de 6 pièces, comprenant 5 chambres spacieuses, est idéale pour les familles ou ceux qui aiment recevoir. 2 chambres et la salle d'eau sont au RDC.
Imaginez-vous dans une cuisine américaine aménagée et équipée, parfaite pour les repas en famille ou les dîners entre amis. Séjour cathédrale avec cheminée. Chauffage au gaz de ville.
Le sous-sol offre des possibilités de rangement ou d'aménagement supplémentaire. Le terrain piscinable de 809m2 est un atout supplémentaire pour ceux qui rêvent d'un espace extérieur.
Située à proximité de toutes les commodités y compris de la ligne 12.
Honoraires à la charge du vendeur. Classe énergie C, Classe climat C Montant estimé des dépenses annuelles d'énergie pour un usage standard : entre 1680.00 et 2330.00 sur les années 2021, 2022 et 2023 (abonnements compris). Les informations sur les risques auxquels ce bien est exposé sont disponibles sur le site Géorisques : georisques.gouv.fr.
121 m²
4 537 €
45 m²
809 m²
6
5
1
2 (séparés)
1988
Individuel gaz
Américaine équipée
Sud
Nord
Oui
Consommations énergétiques
Logement économe
171
Logement énergivore (kWhEP/m2/an)
Émissions de gaz à effet de serre
Faible émission de GES
26
Forte émission de GES(kgeqCO2/m2/an)
Contact SAFIMMO
Contacter gratuitement à l'aide du formulaire ci-dessous.