Honoraires à la charge de l'acquéreur (Prix hors honoraires : 400000 euros).
A 6 kms de Langon -réf 4896 - AZUR Contacter Alexandra* au: 06.02.15.18.25
LES AGENCES EURO IMMOBILIER DE BAZAS ET DE SORE VOUS PRESENTENT :
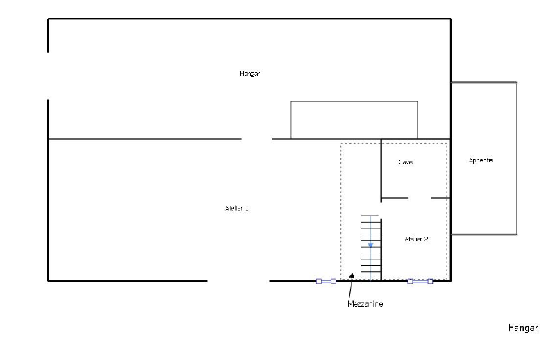
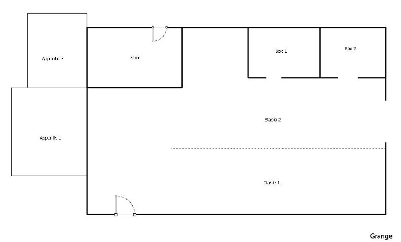
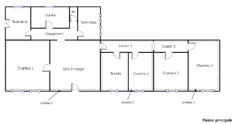
Proche de Langon, charmante maison de plain-pied d'environ 180m2.
Elle se compose d'un grand salon / séjour de 67m² avec cheminée ; une superbe cuisine ouverte tout équipée et aménagée avec un ilot central , 5 chambres , 1 bureau , 1 grande salle de bain et 1 salle d'eau , 2 WC , une buanderie et un cellier , 1 dressing .
Véranda attenante.
Piscine 10x5 au chlore avec pool house et une grande terrasse . Double vitrage, tout à l'égout.
Le tout sur un beau terrain clos de 2980 m² avec portail électrique . * Alexandra DE GERMAY, agent commercial (E.I.) immatriculée au R.S.A.C de Bordeaux, sous le numéro 825 173 842
Honoraires inclus de 3.75% TTC à la charge de l'acquéreur. Prix hors honoraires 400 000 . Classe énergie C, Classe climat A Montant moyen estimé des dépenses annuelles d'énergie pour un usage standard, établi à partir des prix de l'énergie de l'année 2021 : entre 1751.00 et 2371.00 . Les informations sur les risques auxquels ce bien est exposé sont disponibles sur le site Géorisques : georisques.gouv.fr.
Votre conseiller EURO IMMOBILIER : Alexandra DE GERMAY Agent commercial (Entreprise individuelle) RSAC 825 173 842 RCP BORDEAUX