Profitez du Soleil et de la Vue depuis votre Terrasse en Bois Pr
Bordeaux 33000
0
Honoraires à la charge du vendeur.
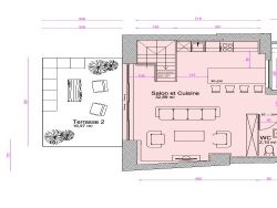
UN DUPLEX DE CARACTÈRE AVEC TERRASSE / VUE DEGAGEE
Implanté au coeur du quartier emblématique des Chartrons, à quelques pas des quais et au contact direct de la Garonne, ce duplex bénéficie d'un emplacement absolument privilégié. Le secteur offre un art de vivre unique, mêlant galeries d'art, antiquaires, restaurants réputés et longues promenades le long du fleuve. L'immeuble en pierre de 3 lots s'inscrit dans une copropriété de standing, aux parties communes élégamment rénovées, disposant d'un local vélos, d'un local poubelles. Un cadre rare, où le charme historique rencontre le confort contemporain, dans l'un des quartiers les plus prisés de Bordeaux.
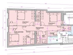
Ce superbe duplex séduit immédiatement par son cachet, sa luminosité et ses volumes. Réparti sur deux niveaux, il offre une belle pièce de vie d'environ 33 m² avec cuisine ouverte, baignée de lumière et bénéficiant d'une vue sublime, dégagée et inspirante. Dans son prolongement, imprégnez-vous d'une atmosphère unique sur la terrasse en bois de 17 m², nichée au dernier étage et offrant une vue totalement dégagée. À l'abri des regards, au calme, cet espace extérieur est parfait pour vos moments de détente, vos repas en plein air ou simplement contempler le paysage en toute sérénité. Côté nuit, l'appartement comprend trois chambres, dont une suite parentale avec salle d'eau privative, une autre salle de bains, des WC séparés ainsi qu'un espace de rangement et une buanderie. Les puits de jour et les murs en pierre apparente renforcent le caractère authentique du lieu, tout en offrant un confort moderne et raffiné.
Ce duplex constitue une opportunité rare dans un secteur d'exception. Son emplacement, ses extérieurs, son charme architectural et la qualité de ses prestations en font un bien aussi attractif pour une résidence principale de standing que pour un investissement patrimonial de premier ordre. Un lieu de vie unique, où chaque jour s'ouvre sur la lumière, la pierre et la Garonne, au coeur du Bordeaux le plus recherché.
UN DUPLEX DE CARACTÈRE AVEC TERRASSE / VUE DEGAGEE
Honoraires à la charge du vendeur. Dans une copropriété de 3 lots. Aucune procédure n'est en cours. DPE en cours. Les informations sur les risques auxquels ce bien est exposé sont disponibles sur le site Géorisques : georisques.gouv.fr.