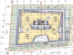
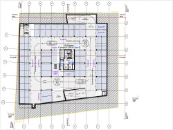
Prométhée présente son nouveau programme HORUS, un ensemble immobilier en R+3, de 2000m2 de bureaux et 1000m2 de surface commerciale. Situé 285 Avenue Marcel Paul, le programme bénéficie d'un emplacement premium à l'ouest de Toulon, offrant la meilleure visibilité à l'entrée des villes de La Seyne sur Mer et de Six Fours. Au coeur d'une zone commerciale et à proximité immédiate des accès autoroutiers (A50) et de toutes commodités, le programme HORUS bénéficie d'une accessibilité optimale. Le bâtiment s'insère finement dans le tissu avoisinant et assure une place privilégiée aux liaisons piétonnes « douces » disposée le long de l'Avenue Marcel Paul, favorable aux Personnes à Mobilités Réduites (PMR). Architecture contemporaine, conception de dernière génération, Horus offre de grands plateaux avec des espaces de travail lumineux et fonctionnels, pensés pour offrir un cadre de travail des plus agréables à vos collaborateurs. La conception de l'immeuble, a été réfléchie et orientée vers un confort d'utilisation de vos collaborateurs et bénéficie entre autres d'un nombre de places de stationnement largement excédentaire. Parcouru par une végétation abondante et ponctuée de terrasses reliées entre elles, le programme est résolument ouvert sur la ville et en interaction avec son environnement. HORUS, c'est : - 1000 m2 de surface commerciale en rez de chaussée - 2000 m2 de bureaux divisés de 142 m2 à 752m2 - Des espaces de travail adaptés et modulables dont certains bénéficies de terrasses ensoleillées - Des façades et terrasses végétalisées - Des services, commerces et restauration à proximité immédiate du bâtiment - Des parkings privatifs en sous-sol (113 places) - Norme RT 2012, ERP 5ème catégorie - 2 ascenseurs desservants les différents niveaux - 1 monte-charge (du sous-sol au R+1 et R+2 possible) La Mise à disposition prévisionnelle des locaux à partir du 4ème Trimestre 2024
Plusieurs surfaces sont disponibles
- des plateaux de bureaux 158 m2 à 1767 m2
Loyer à partir de 2936EUR HT/HC par mois
158 m²
5284.8 %
2024
Contact Prométhée Transaction
Contacter gratuitement à l'aide du formulaire ci-dessous.