PROGRAMME NEUF - APPARTEMENT T2 DE 39,65 M2 AVEC BALCON ET G
Seynod 74600
0
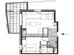
SEYNOD 74600 - Appartement T2 de 39,65m2. l'appartement est composé d'une entrée avec placard, une cuisine équipée ouverte sur le salon-séjour avec accès au balcon et au cellier, une salle de bain, un WC séparé et une chambre. En annexe au sous-sol : un garage. La résidence saura répondre à vos attentes par ses qualités architecturales, son environnement paysagé au coeur de la ville . Matesa Immobilier - Votre Agence immobilière - Haute Savoie vente appartement Seynod 74600.
39.65 m²
7 440 €
7 m²
2
1
1
1
1
1 (7 m²)
Oui
1
Contact Matesa Immobilier
Contacter gratuitement à l'aide du formulaire ci-dessous.