Honoraires à la charge de l'acquéreur (Prix hors honoraires : 243000 euros).
Dans un quartier calme et résidentiel de Saint-Cyprien, la résidence neuve BLUE GARDEN propose un cadre de vie serein et intimiste.
Elle vous séduira par son architecture contemporaine et ses prestations soignées.
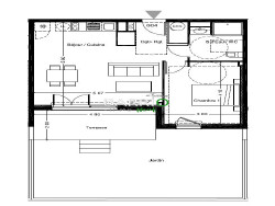
Cet appartement T2 de plus de 48m2 orienté Sud Est offre de beaux volumes, une grande luminosité grâce aux larges baies vitrées, et un véritable confort de vie, été comme hiver. Il bénéficie d'un agréable jardin privatif avec terrasse.
Pensés pour un usage à l'année, il dispose de prestations de qualité : - cuisine équipée - carrelage grand format - volets roulants électriques - climatisation - salles d'eau aménagée - stationnement privatif
La résidence est sécurisée, équipée d'un ascenseur, et répond aux dernières normes d'isolation thermique et phonique. Idéal pour une résidence principale ou un investissement, à deux pas des plages, des commodités et du coeur de Saint-Cyprien.
Détails et disponibilité sur demande !
Dans une copropriété de 70 lots. Aucune procédure n'est en cours. Non soumis au DPE. Les informations sur les risques auxquels ce bien est exposé sont disponibles sur le site Géorisques : georisques.gouv.fr.
48.2 m²
5 041 €
2
1
1
1
01/01/2027
2027
Sud
Est
Oui
1
1
Oui (70 lots)
Contact Gloriane SANTINI
Contacter gratuitement à l'aide du formulaire ci-dessous.