Honoraires à la charge de l'acquéreur (Prix hors honoraires : 585000 euros).
'EDENWEISS', UNE RÉSIDENCE INTIMISTE, DANS LE PLUS PUR ESPRIT HAUT-SAVOYARD
FRAIS DE NOTAIRE OFFERTS !
Situé à l'entrée du village, dans un quartier en plein essor, l'Edenweiss vous offre une proximité immédiate au télésiège des Perrières. Le quartier des Perrières connait une véritable développement au cours de ses dernières années et possède de nombreux atouts.
La résidence Edenweiss vous propose un appartement T3 avec un balcon et un cassier à ski chauffant.
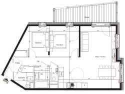
LES SURFACES DETAILLÉES :
Entrée 5.82 m² - Séjour / Cuisine 35,79 m² - Chambre 1 9,49 m² - Chambre 2 10,88 m² - SDB 3,96 m² - Rangement 2,77 m² WC 1,54 m² - Dégagement 3,55 m² - Balcon 11,98 m²
Possibilité d'acheter un parking et un cellier (prix en fonction de la taille).
Qu'il s'agisse d'un achat à usage d'habitation principale, d'une résidence secondaire ou pour un investissement locatif, la localisation du programme offre un équilibre parfait entre proximité et tranquillité à quelques minutes de toutes les commodités : Piste de ski ou de VTT, randonnée, supermarché, commerces, écoles
Pour les investisseurs il est possible de bénéficier d'une réduction de prix de 20% par l'intermédiaire d'un système simple de récupération de TVA.
Dans une copropriété de 25 lots. Aucune procédure n'est en cours. Non soumis au DPE. Les informations sur les risques auxquels ce bien est exposé sont disponibles sur le site Géorisques : georisques.gouv.fr.
73.57 m²
7 952 €
12 m²
3
2
1
1 (séparé)
1 sur 2
1 (12 m²)
Oui
Oui (25 lots)
Contact Agence Olivier
Contacter gratuitement à l'aide du formulaire ci-dessous.