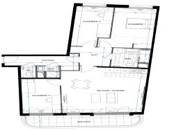
L'agence Welcome Home et Nicolas DELIVET vous présente : Une adresse prisée, un art de vivre typiquement levalloisien. Une composition savante, aux écritures architecturales plurielles. Un coeur d'îlot verdoyant et apaisant. Des espaces extérieurs d'exception pour vivre en plein air. Un confort absolu, qui se décline du studio au 5 pièces. Le haut de gamme redéfini par des prestations de qualité supérieure. Livraison prévue : 3è trimestre 2028 Un appartement de 4 pièces au 2è étage, offrant : une entrée, une pièce principale avec cuisine donnant sur balcon, un dégagement nuit, 3 chambres, une salle de bains avec wc, une salle d'eau et un wc indépendant. Une place de parking complète ce bien. Situé au pied des commerces, à 3 minutes du métro Anatole France, à 5 minutes de la mairie et du marché. Photos non contractuelles d'un appartement témoin décoré, exemple d'aménagement possible. Prix : 1.250.000 EUR Les informations sur les risques auxquels ce bien est exposé sont disponibles sur le site Géorisques : http://www.georisques.gouv.fr Nous sommes joignable 7j/7 au 06 47 82 68 09.
97.85 m²
12 775 €
11 m²
33 m²
4
3
1
1
2
2 sur 5
2028
Sud
1 (11 m²)
Oui
1
Contact Iad France - Nicolas DELIVET
Contacter gratuitement à l'aide du formulaire ci-dessous.