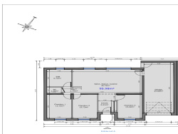
Dans le charmant quartier de la Papiermuhle, venez découvrir ce pavillon neuf de plain pied 95,98m2 hab. construit en ossature bois. Entrée, cuisine équipée ouverte sur la pièce de vie lumineuse pourvue d'un poêle à pellets et donnant accès à la terrasse. Côté nuit, vous disposez de trois chambres. La salle de bains est équipée d'une douche à l'italienne. Le wc est séparé. Le garage d'une surface de 34,66m2 permet d'aménager la buanderie et accède à l'extérieur. Le chauffage est un plancher chauffant pour tout confort . Ballon thermodynamique pour la production d'eau chaude. Triple vitrage, volets motorisés. Vous bénéficierez des 'frais de notaires réduits ' soit 2,5%. Côté extérieur, vous profiterez d'une terrasse et d'un jardinet. Sur une parcelle d'environ 376m2. 'Les informations sur les risques auxquels ce bien est exposé sont disponibles sur le site Géorisques : www.georisques.gouv.fr'
95.98 m²
3 428 €
36 m²
376 m²
5
3
1
1
2023
4
2
1
Consommations énergétiques
Logement économe
50
Logement énergivore (kWhEP/m2/an)
Émissions de gaz à effet de serre
Faible émission de GES
1
Forte émission de GES(kgeqCO2/m2/an)
Contact Agence Immoflexx
Contacter gratuitement à l'aide du formulaire ci-dessous.