Honoraires à la charge de l'acquéreur (Prix hors honoraires : 224500 euros).
Comme à son habitude 50/50 IMMOBILIER vous propose les prix les plus bas du marché et vous propose ce projet de maison neuve sur le dernier terrain constructible et viabilisé de 751 m² d'un lotissement calme.
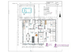
Cette maison de plain-pied se distingue par son salon/séjour lumineux et spacieux d'environ 24 m², idéal pour partager de beaux moments en famille.
La cuisine fonctionnelle s'ouvre facilement sur l'espace de vie, offrant praticité et convivialité. Elle comprend trois chambres confortables (environ 12, 11 et 9 m²), parfaites pour accueillir toute la famille, ainsi qu'une salle de bain bien agencée et des WC séparés pour plus de confort.
Un couloir pratique facilite la circulation dans la maison, tandis qu'un cellier astucieux apporte un espace de rangement supplémentaire. Enfin, le garage généreux de plus de 20 m² complète ce bien, alliant praticité et sécurité pour vos véhicules ou vos rangements. La maison dispose aussi de combles pouvant faire office de stockage ou d'un futur aménagement.
Idéalement placé sur la commune de Plouzévédé et proche de toutes les commodités. Cette maison vous permettra également un accès à pied aux deux écoles primaires de la commune. Ainsi qu'un rapide accès aux premières plages qui se situent à 15 minutes en voiture.
Au vu de la demande foncière, n'hésitez pas à me contacter pour une visite. Monsieur Viollet Pierre-Edouard 06 42 15 46 40 pe.viollet@50-50immobilier.fr
Non soumis au DPE. Les informations sur les risques auxquels ce bien est exposé sont disponibles sur le site Géorisques : georisques.gouv.fr.
Carte pro. CPI29022023000000002
80 m²
2 806 €
24 m²
751 m²
4
3
1
1 (séparé)
2027
1
1
Oui
Contact Pierre-Edouard VIOLLET
Contacter gratuitement à l'aide du formulaire ci-dessous.