Projet Investisseur - Tènement de 2 maisons et dépendances ave
Lent 01240
0
Honoraires à la charge du vendeur.
MPBI TRANSACTIONS Fort potentiel investisseur - Rare sur le secteur
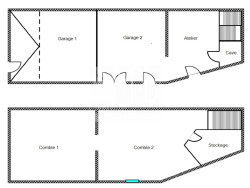
Situé au coeur de la commune de Lent (01250), axe privilégié entre Bourg-En-Bresse et LYON, venez découvrir cet ensemble immobilier de 315,45m2 habitable aujourd'hui, déjà divisé en plusieurs unités avec 693 m² de parcelle, dont une partie non attenante pouvant servir pour créer du stationnement complémentaire pour répondre aux exigences du PLU.
Ce bien se prête particulièrement à la création de logements supplémentaires grâce à une configuration offrant de nombreux atouts : Grand volume facilement divisible, permettant une réorganisation optimale des espaces
Belles hauteurs sous plafond, idéales pour une rénovation technique (isolation, passage des gaines, réseaux, etc.)
Ancienne ouverture entre les logements sur murs porteurs, facilitant la reconfiguration des circulations
Maison traversante, offrant plusieurs accès indépendants possibles
Combles actuellement non exploités, présentant un fort potentiel d'aménagement (170m2 au sol)
Dépendances (granges et garages) permettant la création de deux logements supplémentaires sur cette partie du bâti
Dossier complet et informations complémentaires sur rendez-vous uniquement. Contactez MPBI Transactions Bourg-en-Bresse au 06 15 95 35 78 - Référence annonce : MPBI20
Honoraires à la charge du vendeur - Claire COSTA PLEYNET Agent Commercial - Numéro RSAC : 801 382 722 - BOURG EN BRESSE - Retrouvez toutes les photos et détails de ce bien sur notre site : https://mpbi.fr/annonce/ Les informations sur les risques auxquels ce bien est exposé sont disponibles sur : www.georisques.gouv.fr
Honoraires à la charge du vendeur. Classe énergie D, Classe climat D Montant moyen estimé des dépenses annuelles d'énergie pour un usage standard, établi à partir des prix de l'énergie de l'année 2023 : entre 2394.00 et 3240.00 . Les informations sur les risques auxquels ce bien est exposé sont disponibles sur le site Géorisques : georisques.gouv.fr.
Votre conseiller MPBI TRANSACTIONS : Claire COSTA PLEYNET Agent commercial (Entreprise individuelle) RSAC 801 382 722 RCP Axa Assurances