Propriété de 225m2 sur 15,65ares de terrain avec vue dégagée
Schlierbach 68440
0
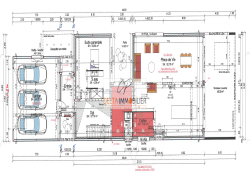
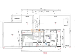
Située dans les hauteurs de Schlierbach, proche frontière SUISSE dans un environnement résidentiel rare et privilégié, découvrez cette villa d'exception aux lignes contemporaines, offrant 225 m2 habitables, un sous-sol de 175 m2, et des prestations haut de gamme. Implantée sur un grand terrain de 15,65 ares, la propriété bénéficie d'une vue totalement dégagée et d'un cadre de vie unique, alliant confort, design et tranquillité. Dès l'entrée, vous serez séduit par un hall majestueux avec vide sur séjour, offrant une impression de volume et de lumière exceptionnelle. La pièce de vie de 92 m2, largement ouverte grâce à ses nombreuses baies vitrées, offre un espace convivial et élégant, tourné vers l'extérieur. La villa propose une véritable vie de plain-pied grâce à sa suite parentale au rez-de-chaussée, comprenant chambre, salle d'eau et espace dressing. À l'étage, retrouvez 3 chambres supplémentaires, et une salle de bains. Le sous-sol de 175 m2 offre de nombreuses possibilités d'aménagement (rangements, salle de sport, atelier, cave à vins etc.), et le garage de 54 m2 permet de stationner facilement plusieurs véhicules. Construite avec des matériaux haut de gamme, elle bénéficie d'un chauffage par pompe à chaleur air/eau avec plancher chauffant, ainsi que de la climatisation, pour un confort optimal en toute saison. Les menuiseries aluminium renforcent l'esthétique contemporaine et la qualité de l'ensemble. À l'extérieur, vous profitez d'une piscine, d'un pool house et de vastes espaces pour recevoir ou se détendre tout en admirant la vue dégagée, rare sur le secteur.
La maison a été construite aux normes RE2020. Disponible au premier semestre 2026.
Villa
225 m²
6 444 €
1565 m²
6
4
2
2
2025
Sud
3
1
1
Oui
Oui
Oui
Oui
Consommations énergétiques
Logement économe
22
Logement énergivore (kWhEP/m2/an)
Émissions de gaz à effet de serre
Faible émission de GES
5
Forte émission de GES(kgeqCO2/m2/an)
Contact SOBCZYK
Contacter gratuitement à l'aide du formulaire ci-dessous.