Propriété familiale de 3 maisons sur 4200m2 de terrain
Les Pennes-Mirabeau 13170
0
Sur la commune de des Pennes Mirabeau dans un secteur recherché et verdoyant
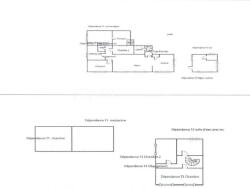
Je vous propose un ensemble immobilier composé de trois Maisons indépendantes sur une 4200 m² de terrain plat est clôturé
Idéal pour un projet familial un investissement ou une profession libérale.
Sur cette propriété vous découvrirez une première maison trois-pièces de environ 120 m² plain-pied, fonctionnel et lumineuse.
La seconde maison est composé de 3 pièces, de environ 66 m² élevée d'un étage.
La troisième maison offre une superficie d'environ 45m2, Elle est composé de trois pièces dont deux sont mansardées.
Chaque maison est équipé de climatisation elle possède chacune une terrasse avec accès au jardin, et leur entrée indépendante.
Toute la propriété est relié au tout-à-l'égout, et desservi par l'eau du canal pour l'arrosage.
Le tout édifiée sur un magnifique terrain de 4200 m² plat, offrant de nombreuses possibilités,
jardinage, piscine, jeux pour enfants,ou toutes autres aménagements nécessaires à vos besoins.
Possibilité de garer plusieurs véhicules, clôturé par portail automatique.
Opportunité rare sur le marché et le secteur .
N'hésitez pas à prendre contact avec moi pour pour plus de renseignements ou pour une visite !
Caroline Saffaro
06.15.21.30.85
BSK immobilier
Cette annonce référence 291751 vous est présentée par votre agent commercial BSK Immobilier CAROLINE SAFFARO MATHIEU (EI) immatriculé au RSAC de MARSEILLE-13E-ARRONDISSEMENT (13013) sous le numéro 52373040600015.
Prix du bien : 1 242 000,00 €
Les honoraires d'agence sont à la charge du vendeur.
A propos des performances énergétiques :
Date de réalisation du diagnostic énergétique : 23/01/2025
Score DPE : 79 kWhEP/m²/an
Score GES : 2 kgepCO2/m²/an
Montant estimé des dépenses annuelles d'énergie pour un usage standard : entre 1230.00 € et 1710.00 € par an. Prix moyens des énergies indexés sur l'année 2023 (abonnements compris).
Les informations sur les risques auxquels ce bien est exposé sont disponibles sur le site Géorisques : www.georisques.gouv.fr
198 m²
6 273 €
6
5
2002
Oui
Consommations énergétiques
Logement économe
79
Logement énergivore (kWhEP/m2/an)
Émissions de gaz à effet de serre
Faible émission de GES
2
Forte émission de GES(kgeqCO2/m2/an)
Contact I@D France - Caroline SAFFARO-MATHIEU
Contacter gratuitement à l'aide du formulaire ci-dessous.