Puteaux, résidence Bellerive - Studio de 18.44m2 vendu loué
Puteaux 92800
0
Honoraires à la charge de l'acquéreur (Prix hors honoraires : 151000 euros).
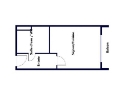
Puteaux, rue des Pavillons, au sein de la résidence Bellerive, à proximité des écoles, commerces et transports (Ligne 1, RER A, Tram Puteaux). L'immobilier Sans Vis-à-Vis vous propose en exclusivité un studio de 18.44m2, situé au 1er étage et composé de la manière suivante: - Une entrée - Une pièce principe de 13m2 - Une salle d'eau avec WC de 3m2 - Un petit balcon de 2m2 Eau chaude et chauffage collectifs. Immeuble ravalé en 2023. Ce bien est vendu loué. Location en meublé, bail de 1 an. Montant du loyer: 795EUR CC. Pour toute information complémentaire et/ou une demande de visite, votre contact: Mylène EBERLIN 07 77 72 35 87 m.eberlin@sansvisavis.com
18.44 m²
8 623 €
1
1
1
1 sur 26
5.30 %
105 € / mois
1978
Ouest
Nord
Oui
Consommations énergétiques
Logement économe
330
Logement énergivore (kWhEP/m2/an)
Émissions de gaz à effet de serre
Faible émission de GES
66
Forte émission de GES(kgeqCO2/m2/an)
Contact GLESSER Anaïs
Contacter gratuitement à l'aide du formulaire ci-dessous.