Quartier Bellevue, beau F2 , 43 m2 idéal pour premier achat
Woippy 57140
0
Honoraires à la charge de l'acquéreur (Prix hors honoraires : 115000 euros).
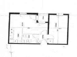
Quartier Bellevue, au premier étage sans ascenser, beau F2, de 2008, 43m2 entièrement rafraichit. Un cellier et une place de parking en complément. Une entrée avec placard, un salon/séjour/coin cuisine ouvert de 21m2, une grande chambre de 14m2, une salle d'eau neuve avec wc. Une loggia vous permettra de prendre l'air tout en étant abrité. Chauffage par chaudière individuelle gaz de ville. Faible charge de copropriété. taxe foncière 393 euros. Idéal premier achat ou investissement
43.66 m²
2 863 €
21 m²
2
1
1
1
1
8.70 %
2007
Oui
1
Oui
1
Oui (3 lots)
Consommations énergétiques
Logement économe
163
Logement énergivore (kWhEP/m2/an)
Émissions de gaz à effet de serre
Faible émission de GES
32
Forte émission de GES(kgeqCO2/m2/an)
Contact CALLIZOT
Contacter gratuitement à l'aide du formulaire ci-dessous.