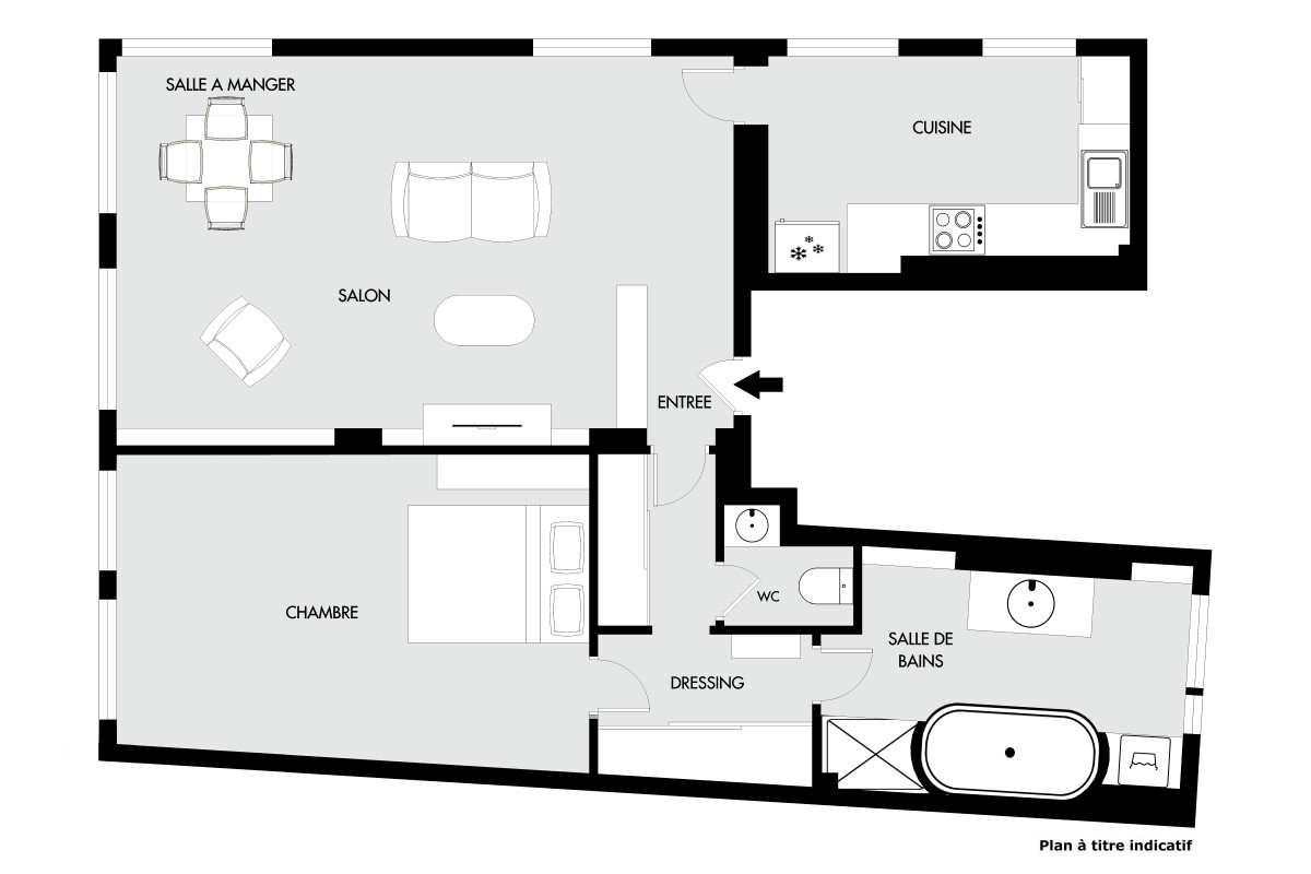
Ketzinger international Realty vous propose de découvrir ce superbe appartement de 73,40 m² (Loi Carrez), situé dans un immeuble ancien, au coeur du prestigieux quartier de la Bourse, dans le 2? arrondissement. Ce bien rare allie le charme de l'ancien et le confort moderne. comprenant une entrée accueillante et fonctionnelle; un salon / salle à manger espace de vie spacieux et lumineux, donnant sur un balcon filant de 10 m², parfait pour profiter de la vue sur ce quartier prisé. Une cuisine équipée et aménagée, séparée pour plus de confort et de convivialité. Une belle chambre avec un accès direct à une salle de bains attenante, offrant intimité et élégance. Un dressing dédié pour un rangement optimal. Toilettes séparées Proximité immédiate des commerces, transports et lieux culturels emblématiques. Cet appartement est une véritable perle rare, idéale pour les amoureux de l'élégance et de l'authenticité.
Quote-part moyenne budget prévisionnel 3537/an Nombre total de lots : 12 Aucune procédure en cours,
Contactez-nous dès maintenant pour organiser une visite et découvrir par vous-même ce bien d'exception
74 m²
10 743 €
9 m²
2
1
1
1 (séparé)
5 sur 6
294.75 € / mois
1 (9 m²)
Oui
Oui
Oui (12 lots)
Consommations énergétiques
Logement économe
205
Logement énergivore (kWhEP/m2/an)
Émissions de gaz à effet de serre
Faible émission de GES
33
Forte émission de GES(kgeqCO2/m2/an)
Contact Daniel Wahnoun
Contacter gratuitement à l'aide du formulaire ci-dessous.