Quartier prisé, superbe villa neuve T4 avec jardin et parkin
Bandol 83150
0
Honoraires à la charge du vendeur.
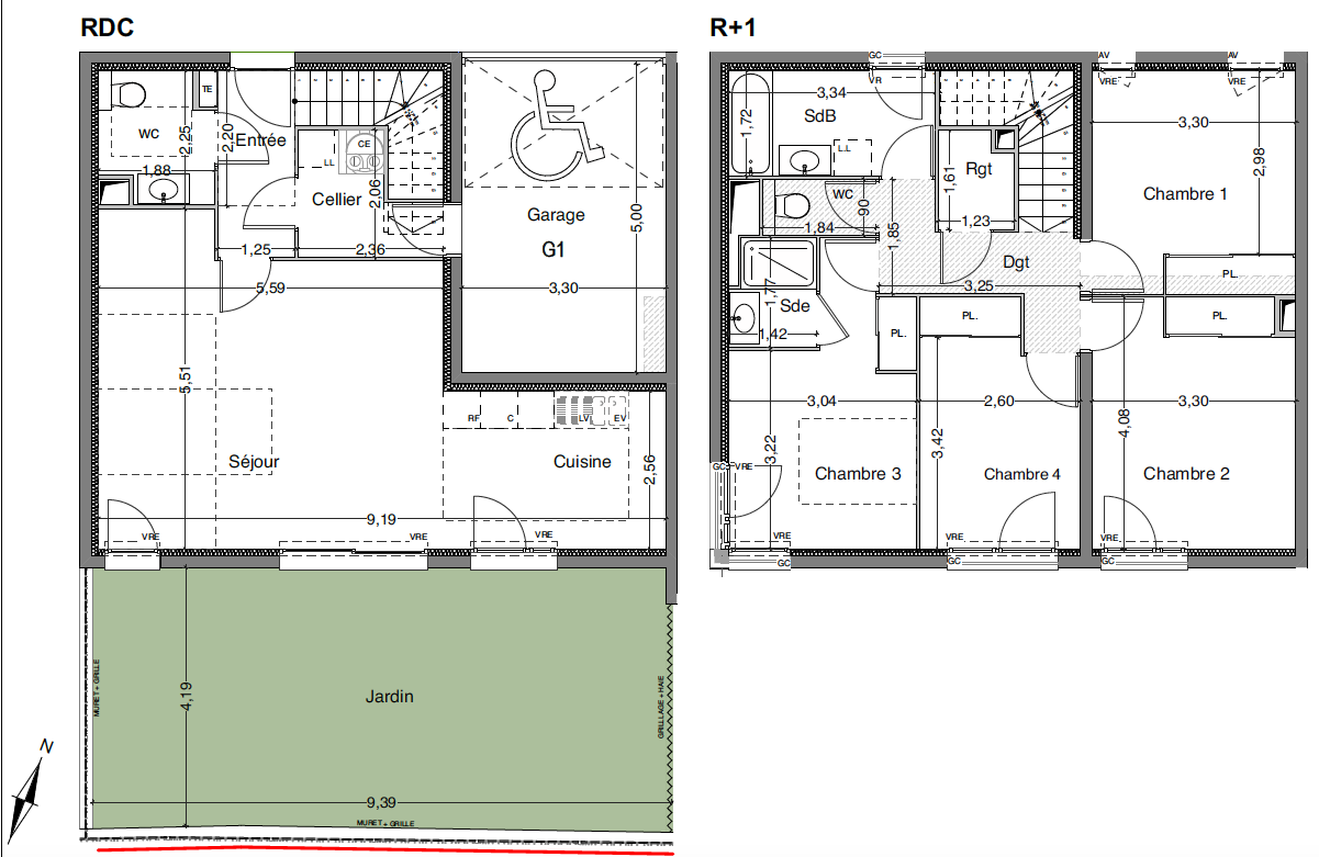
Idéalement située à quelques minutes de la célèbre plage de Renecros et à proximité immédiate des commerces et des écoles, vous serez séduits par l'agencement fonctionnel et les prestations modernes et confortables de cette superbe villa neuve. Elle vous offre de plains pieds un vaste et lumineux séjour orienté sud/est avec de larges baies vitrées, un cellier et un WC invités avec lave mains. A l'étage, un dégagement dessert 2 chambres avec placards, une SDB et un WC ainsi qu'une master bedroom avec SDE. L'ensemble de la villa est climatisé et bénéficie de domotique. Les atouts de ce bien rare: son emplacement, ses volumes et ses prestations. Laissez libre cours à votre imagination: investissement, villégiature ou résidence principale et venez profitez du soleil varois et de la quiétude bandolaise au sein de cette adresse rare. Une visite s'impose sans tarder!
87 m²
6 322 €
169 m²
4
3
1
1
2
2024
Sud
Est
2
Oui
Oui
Consommations énergétiques
Logement économe
5
Logement énergivore (kWhEP/m2/an)
Émissions de gaz à effet de serre
Faible émission de GES
5
Forte émission de GES(kgeqCO2/m2/an)
Contact Leuba
Contacter gratuitement à l'aide du formulaire ci-dessous.