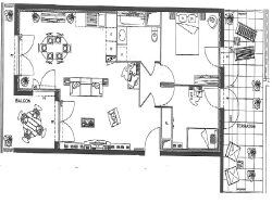
Découvrez ce magnifique appartement T3 de 65,40 m², niché au 2ème étage d'une résidence de standing construite en 2012. Cet appartement vous offre un cadre de vie idéal pour les familles ou les professionnels en quête de sérénité.
Le séjour de 30m² est spacieux et baigné de lumière grâce à son exposition sud-est., la cuisine aménagée, est un véritable espace convivial. Le séjour donne sur un balcon de 10m² avec un coin repas. Cet appartement comprend une salle de bains avec wc ainsi que deux chambres qui donnent sur une terrasse de 19 m² idéale pour profiter des beaux jours et des soirées étoilées.
Le chauffage collectif garantit un confort thermique optimal tout au long de l'année. L'ascenseur facilite l'accès à votre logement, et le stationnement intérieur sécurisé vous assure une tranquillité d'esprit.
La gare de Juvisy est à 5 minutes à pied et à proximité, vous trouverez plusieurs commodités pratiques pour faciliter votre quotidien.
Honoraires à la charge du vendeur. Dans une copropriété de 187 lots. Quote-part moyenne du budget prévisionnel 2 916 /an. Aucune procédure n'est en cours. Classe énergie C, Classe climat C Montant moyen estimé des dépenses annuelles d'énergie pour un usage standard, établi à partir des prix de l'énergie de l'année 2021 : entre 390.00 et 560.00 . Les informations sur les risques auxquels ce bien est exposé sont disponibles sur le site Géorisques : georisques.gouv.fr.
65.4 m²
4 014 €
10 m²
30 m²
3
2
1
1
2 sur 6
243.00 € / mois
2012
Sud
Est
1 (10 m²)
Oui
1
1
Oui (187 lots)
Consommations énergétiques
Logement économe
98
Logement énergivore (kWhEP/m2/an)
Émissions de gaz à effet de serre
Faible émission de GES
18
Forte émission de GES(kgeqCO2/m2/an)
Contact
Contacter gratuitement à l'aide du formulaire ci-dessous.