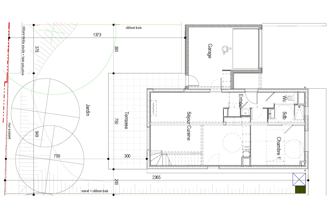
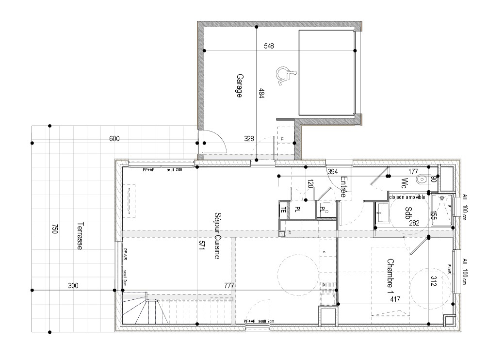
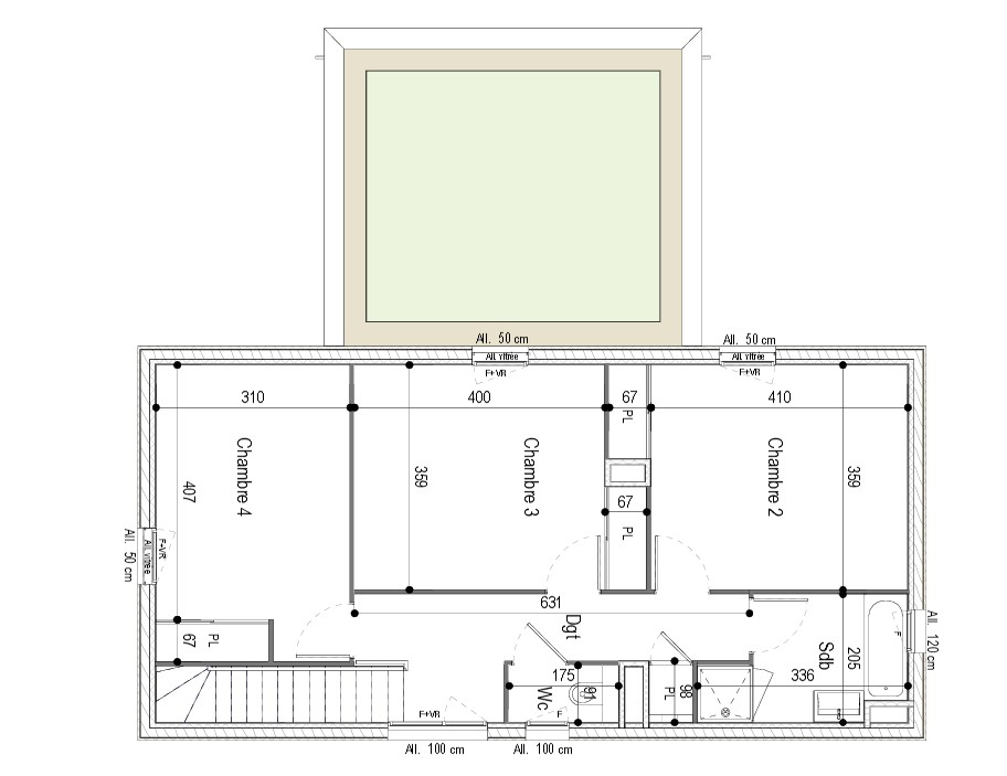
EXCLUSIVITE A 10 min de ANSE sur la commune de Quincieux accès rapide à la gare située dans un secteur calme et champêtre, belle villa spacieuse de 185m2 construite un 2005 édifiée sur un terrain de 1200 m2. Vous serez séduit par la luminosité de la vaste pièce principale grâce aux baies vitrées qui ouvrent sur la terrasse abritée et la piscine, la cuisine équipée est ouverte sur l'espace de vie qui représente au total 75 m2. La maison à l'avantage de disposer d'une suite parentale de plain pied avec salle d'eau et dressing, au même niveau WC et buanderie et accès au garage double et motorisé. A l'étage se loge trois chambres et une salle de bains wc. MAISON IDEALE POUR UNE FAMILLE OU SENIOR POUR LA VIE DE PLAIN PIED MAISON DISPONIBLE PRINTEMPS 2026
Honoraires à la charge du vendeur. Classe énergie C, Classe climat C Montant estimé des dépenses annuelles d'énergie pour un usage standard : entre 2250.00 et 3080.00 sur les années 2021, 2022 et 2023 (abonnements compris). Les informations sur les risques auxquels ce bien est exposé sont disponibles sur le site Géorisques : georisques.gouv.fr.