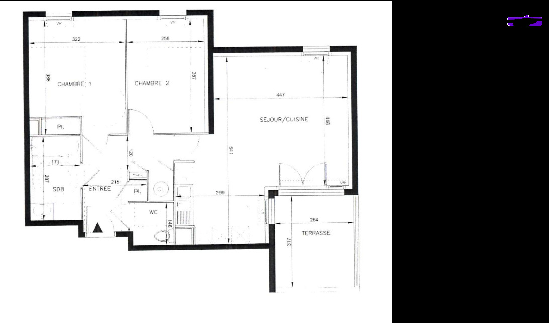
Votre agence GUY HOQUET MONTPELLIER Ouest vous propose à la location ce joli T2 meublé de 55 M2 dans une résidence calme, avec 1 chambre de 14,17m2 avec dressing, salle d'eau, wc séparé, hall d'entrée avec placard, séjour de 20m2 et cuisine séparée donnant sur une terrasse agréable de 6m2.
Parking sécurisé et cave avec un local vélo.
Il est situé à 5 Minutes du tram ligne 3, et à proximité des commerces et des écoles.
Chauffage électrique.
Libre immédiatement
Zone soumise à encadrement des loyers.
Loyer de référence: 706,92 euros/mois hors charges
Loyer majoré : 849,40 euros/mois hors charges
Zone soumise au permis de louer: permis accordé.
Loyer mensuel 808.32 euros HC + Charges 90 euros soit 892.32 euros CC
Prévoir un dépôt de garantie de 1616.64 euros ainsi que des honoraires locataires de 712 euros.
Votre agence Guy Hoquet MONTPELLIER Ouest vous invite à déposer rapidement votre dossier complet chez notre partenaire ZELOK en scannant le QR Code que vous trouverez dans l'annonce, ou dans la rubrique Dépôt Dossier Locataire de notre site GUY HOQUET MONTPELLIER.
Vous pouvez également contacter notre service location GUY HOQUET au : 04 49 23 12 17
Emmanuelle MAUREL (EI) Agent Commercial - Numéro RSAC : 941 581 829 - MONTPELLIER.
Les informations sur les risques auxquels ce bien est exposé sont disponibles sur le site Géorisques : www. georisques. gouv. fr
54 m²
2
1
1
1
1 sur 5
Aménagée
Sud
Oui
Oui
Consommations énergétiques
Logement économe
129
Logement énergivore (kWhEP/m2/an)
Émissions de gaz à effet de serre
Faible émission de GES
5
Forte émission de GES(kgeqCO2/m2/an)
Contact MADY IMMO 34
Contacter gratuitement à l'aide du formulaire ci-dessous.