L'agence 'MON BIEN A LA MER', spécialiste de l'immobilier neuf bord de mer, vous présente :
Rare : Coeur de ville SAINT MARC SUR MER, 2 min à pied de la plage de M. HULOT : Construction d'une petite résidence de 9 logements. Livraison fin 2027. Frais de notaire réduits.
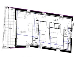
Superbe T3 au dernier étage et vue mer : - Séjour exposé sud et ouest - belle terrasse de 14m2 - deux chambres, salle d'eau, wc, placards, cellier
Parking inclus.
Les plans intérieurs sont personnalisables.
Nous consulter.
Honoraires à la charge du vendeur. Dans une copropriété de 22 lots. Aucune procédure n'est en cours. Non soumis au DPE. Les informations sur les risques auxquels ce bien est exposé sont disponibles sur le site Géorisques : georisques.gouv.fr.
Votre conseiller MON BIEN A LA MER : Gérant - .fr MON BIEN A LA MER Carte T CPI 2201 2018 000 025 040 RCP ACM IARD B1 7025278
57.35 m²
6 609 €
3
2
1
1 (séparé)
2 sur 2
1
Oui (22 lots)
Contact mon bien à la mer
Contacter gratuitement à l'aide du formulaire ci-dessous.