RARE À LA VENTE : le charme d'un appartement dans un chalet à
Megève 74120
0
Honoraires à la charge du vendeur.
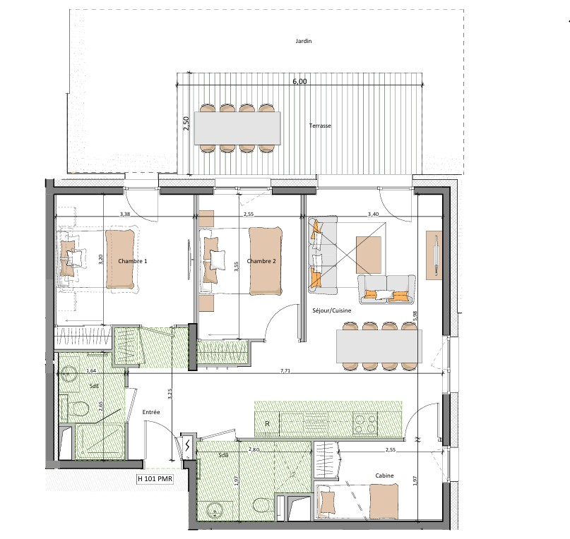
Appartement de charme à Megève 3 chambres Jaillet / Palais des Sports
Situé en bout d'impasse, dans un secteur calme et recherché de Megève, cet appartement bénéficie d'un emplacement privilégié, à seulement 5 minutes à pied du village, 1 minute à pieds du Palais des Sports et des remontées mécaniques du Jaillet. Niché au premier étage d'une petite résidence au coeur d'un environnement verdoyant, ce bien dispose d'une surface d'environ 87m2. Aménagé avec des matériaux nobles, il offre des prestations soignées et une atmosphère à la fois chaleureuse et raffinée. La double exposition Sud / Sud-Ouest, confère à ce bien un cadre de vie lumineux et allie avec élégance charme alpin et confort contemporain.
L'appartement s'articule comme suit : une entrée indépendante, un salon avec cuisine ouverte, donnant accès à un balcon plein Sud, deux chambres, une salle de bains, des toilettes invitées, une suite parentale avec sa propre salle de douche. Annexes En complément, ce bien dispose : d'un grand garage fermé, d'une place de stationnement extérieure, ainsi que d'un studio indépendant en rez de jardin, idéal pour recevoir ou pour un usage locatif.
Honoraires à la charge du vendeur. Classe énergie G, Classe climat C Logement à consommation énergétique excessive. Montant estimé des dépenses annuelles d'énergie pour un usage standard : entre 2607.00 et 3529.00 sur les années 2021, 2022 et 2023 (abonnements compris). Les informations sur les risques auxquels ce bien est exposé sont disponibles sur le site Géorisques : georisques.gouv.fr.