Rare Appartement Le Cannet (hauteur ) 5 pièce(s) de 156 m2 vue MER
Le Cannet 06110
0
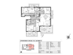
sur les hauteurs de cannes , une grande surface de vie ( séjour+cuisine : 51 m2 ) et 2 terrasses ( soit 40 m2 d extérieurs ) vous feront apprécier la vue dégagée sur la mer de cet ' ultimo plano'. disponible immédiatement ! ...avec des frais d'acte authentique faibles ( 3 % estimés)) les prestations sont actuelles : Climatisation réversible individuelle, chauffage et eau chaude sanitaire par pompe à chaleur haute performance. Menuiseries extérieures en aluminium laqué Meuble-vasque contemporain et radiateur sèche serviettes dans les salles de bain ? Volets électriques ? Installation de domotique permettant le contrôle à distance des volets roulants, chauffage/climatisation et éclairage ? Contrôle des accès par digicode, badge VIGIK® et visiophone dans les logements rappel : 3 box et une cave. et une piscine dans la copropriété. visuels non contractuels Copropriété de 110 lots - dont 110 lots habitation. (Pas de procédure en cours). Charges annuelles : 5600 euros.