Rare en ville : T3 moderne et rénové avec garage et vue dégag
Clermont-Ferrand 63100
0
Honoraires à la charge du vendeur.
CLERMONT NORD rue du Solayer, proche Gendarmerie CBF Conseils vous propose ce beau T3/T4 avec garage.
Choisir cet appartement c'est opter pour confort et praticité.
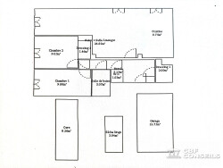
Avec ses 68m², il offre un espace de vie agréable : un grand salon/séjour, une cuisine moderne et équipée ouverte sur la salle à manger.
Côté nuit, découvrez deux chambres avec dressing intégré, idéal pour le rangement. Vous trouverez une salle d'eau et un WC indépendant. Pour compléter votre confort, un garage fermé et un parking sécurisé seront à votre disposition.
Vous pourrez vous sentir confortablement installé grâce à sa rénovation récente et son style moderne. Juste à déposer vos valises ! Vous avez même la possibilité de conserver une partie du mobilier déjà en place pour vous installer encore plus facilement. L'appartement bénéficie en plus d'une belle luminosité et d'une vue sans vis à vis, un atout plutôt rare en ville.
Et ce n'est pas tout : la copropriété est bien entretenue et des travaux , notamment énergétiques, importants ont déjà été votés et réglés par le propriétaire actuel un vrai plus dont vous bénéficierez. Sans oublier ses nombreux espaces verts qui offrent un cadre paisible et sa localisation proche des logements de la gendarmerie.
Vous pouvez également envisager cet appartement comme un investissement : proche de l'école d'architecture, avec une rentabilité de 6?%, il représente une option intéressante pour se constituer un patrimoine.
Ne manquez pas cette occasion d'acquérir cet appartement prêt à vous accueillir.
Contactez nous pour une visite au O7.89.64.64.02
« Les informations sur les risques auxquels ce bien est exposé sont disponibles sur le site Géorisques : www.georisques.gouv.fr » (C. envir., art. R. 125-25, I). CBF Conseils 18 rue Pierre de Coubertin 63000 CLERMONT FERRAND, exerçant l'activité de transactions sur immeubles et fonds de commerces, immatriculation 892 965 708 R.C.S Clermont-Ferrand. Titulaire de la carte professionnelle n°CPI 6302 2021 000 000 005 délivrée par le président de la chambre de commerce et de l'industrie de Clermont-Ferrand
Honoraires à la charge du vendeur. Dans une copropriété de 240 lots. Aucune procédure n'est en cours. Classe énergie E, Classe climat E Montant estimé des dépenses annuelles d'énergie pour un usage standard : entre 1280.00 et 1800.00 sur les années 2021, 2022 et 2023 (abonnements compris). Les informations sur les risques auxquels ce bien est exposé sont disponibles sur le site Géorisques : georisques.gouv.fr. Ce bien vous est proposé par un agent commercial (Entreprise individuelle).