RARE MAISON SUR LE TOIT AVEC TERRASSE DE + 100 m2 , 2 garage
Caluire-et-Cuire 69300
0
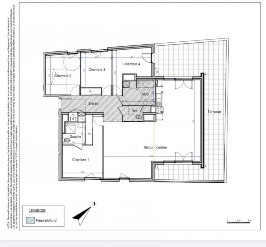
Très rare et en exclusivité, venez découvrir cette maison sur le toit, baignée de lumière et de soleil. Seul à l'étage avec accès privatisé de l'ascenseur, impression d'être dans une véritable maison, sur le toit, sans aucun vis-à-vis, les pièces ouvrant à travers de grandes baies vitrées sur une terrasse à vivre de plus de 100 m2. Beaux volumes pour cette maison baignée de lumière, aux vues dégagées sur le parc et la Saône. 1 garage fermé inclus dans le prix (un 2ème garage possible en sus du prix) et Une grande cave aménagée complètent ce bien rare. Climatisation. Très beau patrimoine immobilier, situé dans un parc fermé et sécurisé. Résidence de standing recherchée. Ce bien est situé exactement juste en bordure de Caluire, sur la commune de Fontaines sur Saône. A toute proximité de l'école internationale OMBROSA et à 3 mn à pied de l'arrêt du bus 40 pour Lyon Hôtel de Ville. Les charges comprennent notamment la consommation d'eau froide, l'entretien des espaces verts, l'ascenseur. Honoraires charge vendeur. Pour tous renseignements complémentaires, photos, plans et visites privées, merci de contacter Anne de PLANCHARD au 0620056643 . Consultez tous nos biens sur notre site www.immocreation.fr !
132 m²
5 091 €
4
3
1
1
2
4 sur 4
366 € / mois
1992
Sud
1
Oui
Oui
2
1
Oui
Oui
Oui
Oui (10 lots)
Consommations énergétiques
Logement économe
130
Logement énergivore (kWhEP/m2/an)
Émissions de gaz à effet de serre
Faible émission de GES
7
Forte émission de GES(kgeqCO2/m2/an)
Contact DE PLANCHARD Anne
Contacter gratuitement à l'aide du formulaire ci-dessous.