Ravissant 3 pièces de 62m2 avec balcon - Vue exceptionnelle et bien agencé - Bd Jean Jaurès, Clichy
Clichy 92110
0
Hosman vous propose ce lumineux appartement de 62 m² Carrez avec balcon de 7m2, idéalement situé au 10? étage d'un immeuble du boulevard Jean Jaurès à Clichy.
Cet appartement offre une vue dégagée et exceptionnelle sur la Seine, le Sacré-C?ur, la Défense et la Tour Eiffel. Il dispose également d'une cave privative, d'une seconde cave partagée avec un autre copropriétaire et d'un parking couvert.
Planifiez facilement votre visite en choisissant le créneau qui vous convient sur le site d'Hosman.
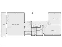
Cet appartement traversant et exposé Est/Ouest se compose de :
Une spacieuse pièce de vie de 25 m², avec cuisine ouverte équipée,
Deux belles chambres au calme,
Une salle de bain moderne avec douche,
Des toilettes séparées.
La double baie vitrée assure une excellente luminosité et permet un accès direct au balcon de 7m2, idéal pour profiter de la vue.
Chauffage collectif au gaz et eau chaude collective, pour un confort optimal.
Excellent DPE, garantissant une bonne performance énergétique.
Taxe foncière : 1 200 €.
Charges de copropriété : 765 € tous les 3 mois.
Local vélo disponible pour les résidents.
Un quartier dynamique et bien desservi :
Situé dans un environnement agréable et pratique, l'appartement est à proximité des commerces, supermarchés, restaurants et écoles, notamment l'École élémentaire Pasteur.
Les transports en commun sont accessibles en quelques minutes :
Métro ligne 13 ? Mairie de Clichy (9 min à pied)
Lignes de bus 54 et 274
L'immeuble, construit dans les années 70, est en bon état général, grâce aux travaux de ravalement réalisés en 2016.
Hosman s'efforce de réinventer l'agence immobilière en offrant un service innovant et transparent aux acheteurs et aux vendeurs. Nos frais d'agence sont de 9 900 euros fixes à la charge du vendeur.
Si vous êtes un professionnel de l'immobilier (agent, mandataire ou chasseur immobilier), sachez que toutes les annonces Hosman sont ouvertes à la collaboration. N'hésitez pas à nous contacter pour en discuter.
62 m²
6 210 €
3
2
1
1
10 sur 12
Est
Ouest
Oui
Oui
Consommations énergétiques
Logement économe
174
Logement énergivore (kWhEP/m2/an)
Émissions de gaz à effet de serre
Faible émission de GES
26
Forte émission de GES(kgeqCO2/m2/an)
Contact Julie Jaubert
Contacter gratuitement à l'aide du formulaire ci-dessous.