À Lyon 7, secteur Girondins / Jean Jaurès, découvrez un duplex T5 de 112,70 m² qui offre le confort rare d'un rez-de-jardin avec entrée indépendante, comme une maison en ville.
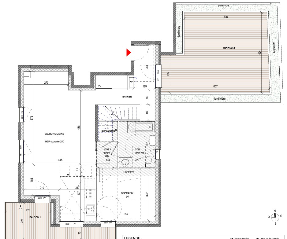
Dès l'entrée, le ton est donné : une belle pièce de vie de 34 m², ouverte sur une terrasse de 17 m², tournée vers le jardin paysagé de la résidence. Ici, le calme est total, en retrait de l'agitation, avec une vraie sensation d'intimité. La hauteur sous plafond de 2,90 m apporte un volume très agréable et une vraie respiration à l'espace de vie.
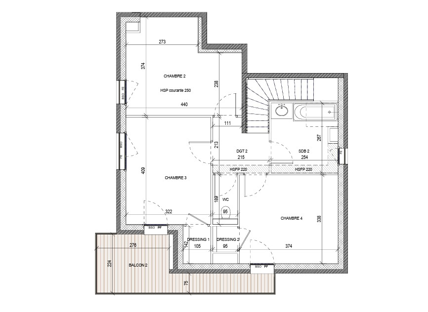
À l'étage, l'espace nuit accueille 4 chambres, un coin bureau, une salle de bains, une salle d'eau, des WC indépendants et une buanderie. L'agencement est idéal pour une famille ou pour ceux qui souhaitent télétravailler confortablement.
Les prestations sont particulièrement soignées : carrelage grand format, parquet chêne massif dans les chambres, menuiseries bois, brise-soleil orientables électriques, salle de bains équipée avec robinetterie Hansgrohe, WC suspendus, porte sécurisée 5 points, vidéophone, résidence close et sécurisée.
Le quartier des Girondins poursuit sa transformation : commerces, transports, métro Jean Jaurès, berges du Rhône, Parc de Gerland et Confluence sont facilement accessibles.
Prix : 790 000 Honoraires d'agence inclus à la charge du vendeur.
Garage box en sus : 40 000 Estimation frais de notaire : 20 000 Estimation charges de copropriété : 200 / mois
Contactez une conseillère immobilière Accano pour en savoir plus et organiser une visite du bien.
Honoraires à la charge du vendeur. Dans une copropriété de 57 lots. Aucune procédure n'est en cours. Classe énergie A, Classe climat A Montant moyen estimé des dépenses annuelles d'énergie pour un usage standard, établi à partir des prix de l'énergie de l'année 2021 : entre 441.00 et 597.00 . Les informations sur les risques auxquels ce bien est exposé sont disponibles sur le site Géorisques : georisques.gouv.fr.