Honoraires à la charge de l'acquéreur (Prix hors honoraires : 847619 euros).
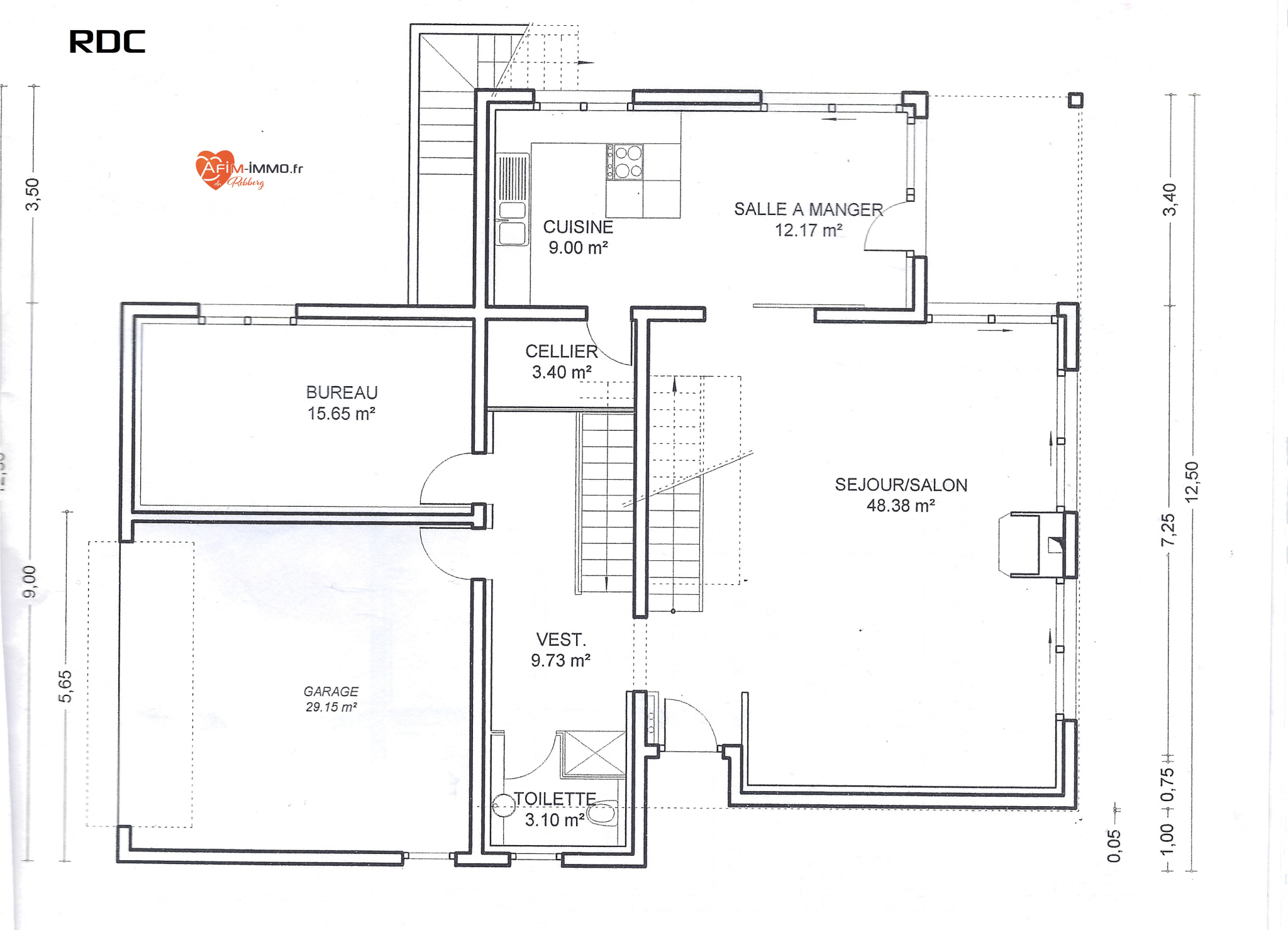
Nichée au coeur du très prisé quartier du Rebberg à Mulhouse, cette villa de 212 m2 s'étend sur un superbe terrain arboré de 22,04 ares. Dans un écrin de verdure, tout en étant proche du centre, elle offre un cadre de vie rare, paisible et baigné de lumière. Dès l'entrée, le rez-de-chaussée dévoile un vaste hall qui donne le ton : volumes généreux et belle luminosité. On y découvre une cuisine, un salon-séjour chaleureux, une salle à manger conviviale, ainsi que des toilettes. À l'étage, quatre chambres vous attendent, idéales pour accueillir une famille, accompagnées de deux salles de bains qui permettent confort à chacun. Le sous-sol complète harmonieusement l'ensemble avec un garage, des espaces de rangement et une cave. La maison nécessite une rénovation globale : c'est une page blanche pour qui saura révéler tout le potentiel de cette bâtisse au charme intemporel. Que vous rêviez d'une résidence principale d'exception ou d'un projet de vie sur mesure, ce bien offre une opportunité unique dans un secteur recherché. Les informations sur les risques auxquels ce bien est exposé sont disponibles sur le site Géorisques : https://www.georisques.gouv.fr/
212 m²
4 198 €
2204 m²
6
4
1
5.00 %
1970
1
Consommations énergétiques
Logement économe
312
Logement énergivore (kWhEP/m2/an)
Émissions de gaz à effet de serre
Faible émission de GES
97
Forte émission de GES(kgeqCO2/m2/an)
Contact HARNIST
Contacter gratuitement à l'aide du formulaire ci-dessous.