REF : NOUVEAUPROJET - PALAJA -Terrain 1050 M2 avec permis de construire disponible
Carcassonne 11000
0
Honoraires à la charge du vendeur.
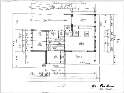
REF : NOUVEAUPROJET - PALAJA, terrain plat constructible de 1050m2 avec une exposition SUD. Un permis de construire avait été dépose en 2024, pour un plain pied Plan disponible : projet maison plain pied 3 chambres dont une suite parentale, une SDB indépendante pour une surface de plancher de 134 m2. Garage. G2 effectuée. RARE ! Opportunité à saisir ! Les informations sur les risques auxquels ce bien est exposé sont disponibles sur le site Géorisques : www.georisques.gouv.fr Le prix indiqué comprend les honoraires de négociation, ces honoraires sont à la charge exclusive du vendeur. Camille Maurette, Directrice, immatriculé au RSAC de Carcassonne sous le numéro 90464305300021- carte professionnelle n° CPI11012021000000008