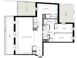
RENNES - Jeanne d'Arc - Appartement 5 pièces Ouest - 113.26m² - 5ème étage - ascenseur - terrasse 19.37m² - garage en sous-sol sécurisé. Situé dans le quartier de Jeanne d'Arc, ce vaste appartement de 5 pièces profite d'un emplacement privilégié à deux pas du métro, permettant un accès rapide au centre-ville (Sainte-Anne en 10 minutes, Gare de Rennes en 15 minutes). Commerces, écoles et transports en commun sont à proximité immédiate, tandis que plusieurs parcs se trouvent à moins de 500 mètres, idéaux pour des moments de détente. Au 5? étage avec ascenseur, cet appartement lumineux de 113,26 m², exposé ouest, offre un cadre de vie confortable. Il se compose d'une entrée avec placard, d'un vaste séjour avec cuisine ouverte de 50 m², prolongé par une belle terrasse de 19,37 m². Vous y trouverez deux dégagements, trois chambres, un dressing, un cellier, une salle de bains, une salle d'eau, ainsi que deux WC indépendants et plusieurs espaces de rangement. Un garage sécurisé en sous-sol complète ce bien. Atout supplémentaire, le chauffage est assuré par le réseau de chaleur urbain, une solution à la fois économique et écologique. N'attendez plus, contactez-nous dès maintenant pour en savoir plus et réserver votre futur appartement. Prix taux de tva à 5.5% - Conditions nous consulter. Prix promoteur - Les informations sur les risques auxquels ce bien est exposé sont disponibles sur le site Géorisques : www.georisques.gouv.fr. Photos non contractuelles - Suggestions d'aménagements Copropriété de 43 lots - dont 43 lots habitation. (Pas de procédure en cours). Charges annuelles : 1627 euros.