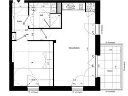
RENNES ST JACQUES / COURROUZE - Appartement 2 pièces 44.04m² Sud Ouest- 2ème étage - ascenseur - balcon 5.53m² - stationnement en sous-sol sécurisé. Découvrez ce charmant appartement de 2 pièces, offrant une surface de 44,04 m² et une belle exposition Sud-Ouest. Niché au 2ème étage d'une résidence contemporaine avec ascenseur, conforme aux normes RT 2020, il bénéficie d'un emplacement privilégié avec sa proximité immédiate avec les commerces, écoles, services et infrastructures, ainsi que d'une excellente connectivité grâce à la ligne B du métro à 500 mètres, aux lignes de bus et aux pistes cyclables. Baigné de lumière grâce à son exposition Sud Ouest, cet appartement se compose d'une entrée, d'un séjour avec cuisine ouverte s'ouvrant sur un balcon de 5,53 m², d'une chambre et d'une salle d'eau avec WC. Un stationnement en sous-sol sécurisé complète ce bien. Ne manquez pas cette opportunité idéale pour un investissement ou une première acquisition, alliant confort, modernité et praticité. Prix promoteur - Frais de notaire réduits Les informations relatives aux risques auxquels ce bien est exposé sont disponibles sur le site Géorisques : www.georisques.gouv.fr. Photos non contractuelles, suggestions d'aménagements Copropriété de 24 lots - dont 24 lots habitation. (Pas de procédure en cours). Charges annuelles : 633 euros.