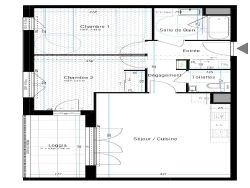
RENNES - Jeanne d'Arc - Appartement 3 pièces de 63.13m² Ouest - 4ème étage - ascenseur - loggia de 7.83m² - garage en sous-sol sécurisé. Achat en principal - Prix taux tva 5.5 % A deux pas du métro, proche des commerces, écoles et transports en commun, cet appartement de 3 pièces exposé à l'Ouest bénéficie d'un emplacement permettant de rejoindre rapidement le centre-ville (Sainte-Anne en 10 minutes, Gare de Rennes en 15 minutes). , il se trouve non loin des parcs, offrant un cadre idéal pour se détendre. Situé au 4ème étage avec ascenseur, cet appartement lumineux de 63.13m² m², dispose d'une entrée avec dégagement, d'un séjour salon avec cuisine ouverte donnant accès à une loggia de 7.83m² à l'Ouest. Il comprend deux chambres dont une avec placard, ainsi qu'une salle de bains et wc indépendant. Un garage sécurisé en sous-sol complète ce bien. Enfin, le chauffage, assuré par le réseau de chaleur urbain, garantit une solution à la fois économique et écologique.. Contactez-nous dès maintenant pour en savoir plus et réserver votre futur appartement ! Prix promoteur - Les informations sur les risques auxquels ce bien est exposé sont disponibles sur le site Géorisques : www.georisques.gouv.fr. Photos non contractuelles - Suggestions d'aménagements Copropriété de 43 lots - dont 43 lots habitation. (Pas de procédure en cours). Charges annuelles : 907 euros.