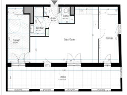
RENNES - Jeanne d'Arc - Appartement 3 pièces 66.54m² Sud Ouest - 4ème étage - ascenseur - terrasse 28.30m² - garage en sous-sol sécurisé A deux pas du métro, proche des commerces, écoles et transports en commun, cet appartement de 3 pièces exposé à Sud Ouest bénéficie d'un emplacement permettant de rejoindre rapidement le centre-ville (Sainte-Anne en 10 minutes, Gare de Rennes en 15 minutes). , il se trouve non loin des parcs offrant un cadre idéal pour se détendre. Situé au 4ème étage avec ascenseur, cet appartement lumineux de 66.54m², dispose d'une entrée avec placard, d'un séjour salon avec cuisine ouverte donnant accès à une terrasse de 28.30m². Il comprend deux chambres, salle d'eau et wc indépendant. Les chambres donnent également sur la terrasse. Un garage sécurisé en sous-sol complète ce bien. Enfin, le chauffage, assuré par le réseau de chaleur urbain, garantit une solution à la fois économique et écologique.. Prix promoteur - Les informations sur les risques auxquels ce bien est exposé sont disponibles sur le site Géorisques : www.georisques.gouv.fr. Photos non contractuelles - Suggestions d'aménagements Copropriété de 43 lots - dont 43 lots habitation. (Pas de procédure en cours). Charges annuelles : 950 euros.