RENNES - Jeanne d'Arc - appartement 3 pièces de 58.80m² Ouest avec loggia de 15.40m²- 2ème étage- stationnement.
Rennes 35000
0
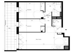
RENNES - Jeanne d'Arc - appartement 3 pièces de 58.80m² Ouest avec loggia de 15.40m²- 2ème étage- stationnement privatif en sous-sol sécurisé. Situé à deux pas des rives de la Vilaine et du Parc Oberthur, dans une résidence contemporaine au calme, à quelques minutes du centre ville de Rennes, situé au 2ème étage, appartement 3 pièces de 58.80m² comprenant : un séjour salon avec cuisine ouverte avec accès sur la loggia de 15.40m² à l'Ouest, 2 chambres avec placards, salle d'eau, wc indépendant. Stationnement sous-sol sécurisé. Prix promoteur - frais de notaire offerts Les informations sur les risques auxquels ce bien est exposé sont disponibles sur le site Géorisques : www.georisques.gouv.fr. Photos non contractuelles - Suggestions d'aménagements Copropriété de 26 lots - dont 26 lots habitation. (Pas de procédure en cours). Charges annuelles : 840 euros.