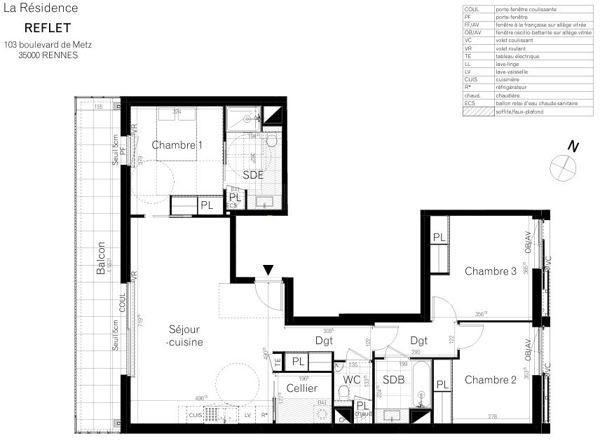
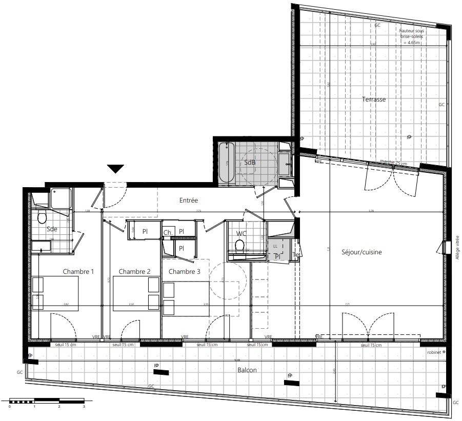
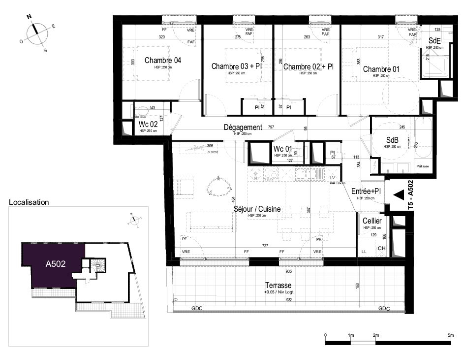
RENNES - Proche St Hélier - Appartement 5 pièces 100.94m² - 3ème étage - terrasse de 91.86m² - ascenseur - stationnements. Proche du quartier de Saint-Hélier, à 5 minutes de l'hypercentre, à proximité des commerces, commodités et transports, dans une nouvelle résidence, situé au 3ème étage avec ascenseur, appartement 5 pièces de 100.94m² comprenant : un séjour salon avec cuisine ouverte donnant accès à une terrasse de 91.86m², 4 chambres dont une avec sa salle d'eau privative, placards, salle de bains, 2 wcs, cellier. Stationnements en sous-sol sécurisés. Prix promoteur - frais de notaire réduits. Les informations sur les risques auxquels ce bien est exposé sont disponibles sur le site Géorisques : www.georisques.gouv.fr. Photos non contractuelles - Suggestions d'aménagements Copropriété de 45 lots - dont 45 lots habitation. (Pas de procédure en cours). Charges annuelles : 1440 euros.