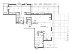
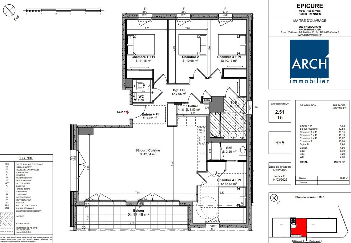
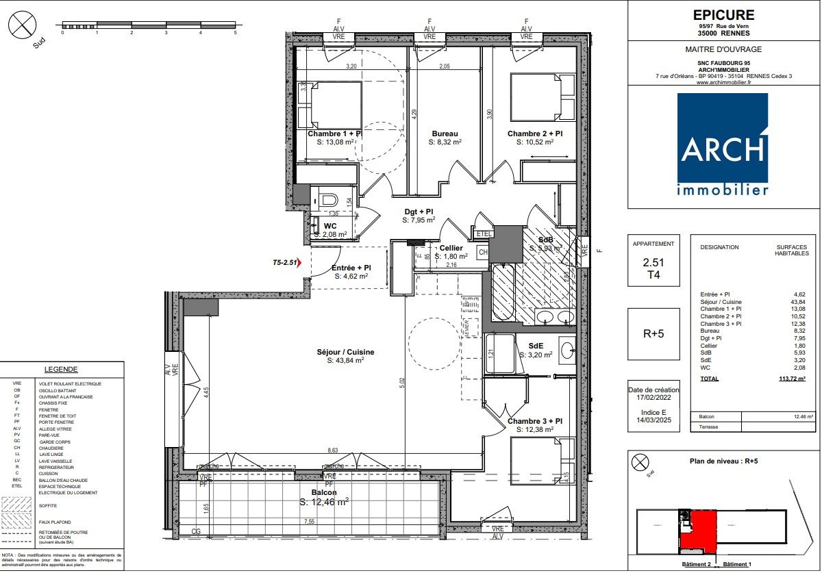
RENNES - PROCHE ST HELIER - Appartement 5 pièces 113.36m² Sud - 5ème étage - terrasse de 102.49m² et balcon 6.52m² - ascenseur - stationnements
Rennes 35000
0
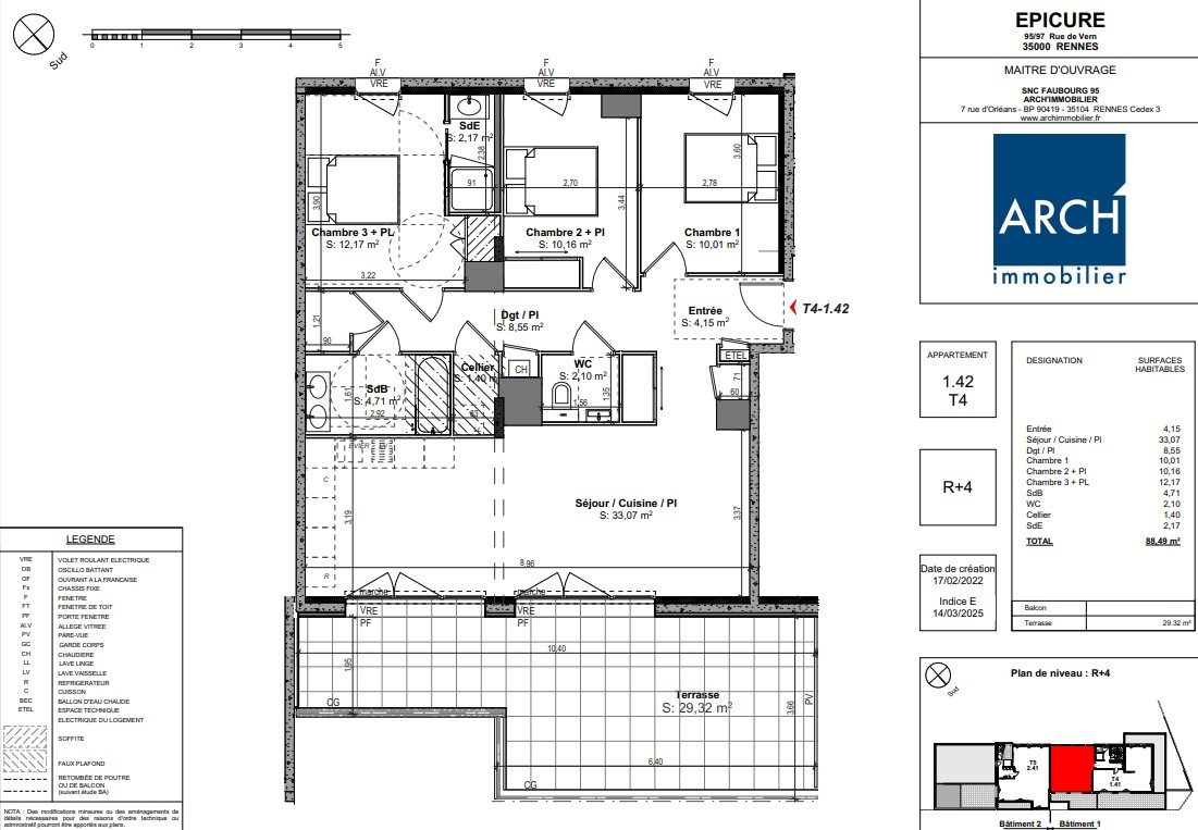
RENNES - Proche St Hélier - Grand Appartement 5 pièces 113.36m² Sud - 5ème étage - terrasse de 102.49m² et balcon 6.52m² - ascenseur - stationnements A l'orée du quartier recherché de Saint-Hélier et à seulement 5 minutes du coeur de Rennes, découvrez cet appartement d'exception de 113,36 m² au 5ème étage d'une résidence neuve avec ascenseur. Ce spacieux 5 pièces se compose d'une entrée, d'un vaste séjour-salon avec cuisine ouverte de 42 m² s'ouvrant sur une superbe terrasse de 108 m², offrant une vue dégagée et un cadre idéal pour des moments de détente en extérieur. L'appartement dispose de quatre chambres, dont une suite parentale avec salle d'eau privative, des placards intégrés, une salle de bains, deux WC, un cellier, ainsi qu'un balcon de 6,52 m² pour encore plus de confort. Deux stationnements sécurisés en sous-sol complètent ce bien d'exception, pensé pour un confort de vie optimal à deux pas des commerces, commodités et transports. Prix promoteur - frais de notaire réduits. Les informations sur les risques auxquels ce bien est exposé sont disponibles sur le site Géorisques : www.georisques.gouv.fr. Photos non contractuelles - Suggestions d'aménagements Copropriété de 45 lots - dont 45 lots habitation. (Pas de procédure en cours). Charges annuelles : 1627 euros.