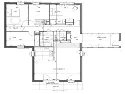
Proche St Hélier - Appartement 5 pièces 132.64m² Sud Ouest - 4ème étage - balcon 11.05m² - ascenseur - stationnements Aux portes du quartier prisé de Saint-Hélier, à seulement 5 minutes de l'hypercentre, cet appartement d'exception bénéficie d'un emplacement idéal à proximité immédiate des commerces, commodités et transports. Situé au 4EME étage d'une résidence contemporaine avec ascenseur, ce 5 pièces de 132,64 m², baigné de lumière grâce à son exposition Sud-Ouest, séduit par ses volumes généreux et ses prestations modernes. L'entrée, agrémentée d'un placard et d'un jardin d'hiver, mène à un spacieux séjour-salon avec cuisine ouverte. Cet espace de vie s'ouvre sur un balcon de 11,05 m², parfait pour profiter des belles journées ensoleillées. L'appartement offre également quatre chambres, dont certaines avec rangements, une salle de bains, une salle d'eau, ainsi que deux WC séparés pour un confort optimal. Un cellier vient compléter cet agencement intelligent et fonctionnel. Pour parfaire ce bien, deux stationnements en sous-sol sécurisés sont inclus, garantissant sérénité et praticité au quotidien. Proposé au prix promoteur, avec des frais de notaire réduits, cet appartement constitue une opportunité rare dans un secteur recherché, idéal pour les familles ou les amateurs de beaux volumes en coeur de ville. Les informations sur les risques auxquels ce bien est exposé sont disponibles sur le site Géorisques : www.georisques.gouv.fr. Photos non contractuelles - Suggestions d'aménagements Copropriété de 45 lots - dont 45 lots habitation. (Pas de procédure en cours). Charges annuelles : 1900 euros.