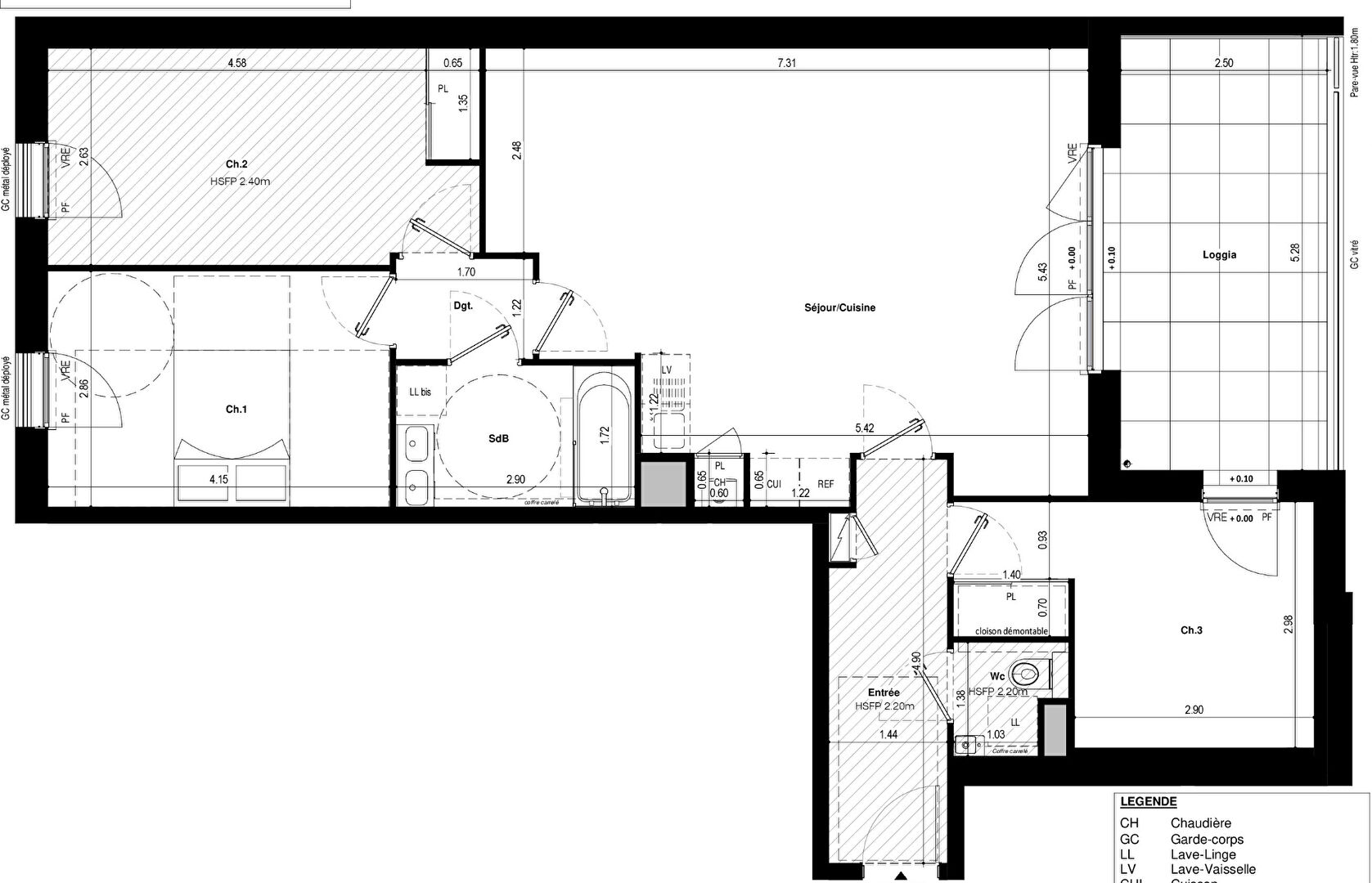
COGIR Neuf vous propose : RENNES BOURG L'EVEQUE- Idéalement située entre le centre-ville historique et le campus universitaire de Villejean, venez découvrir cette nouvelle résidence de 26 logements pour habiter ou investir. Vous y trouverez cet appartement T3 au 1er étage comprenant : une entrée avec placards, un séjour/cuisine de 31 m², 2 chambres dont une suite parentale, une salle de bain avec WC séparé et un balcon de 12 m2. L'appartement dispose également d'une place de parking en souterrain. Eligible au dispositif PINEL T1 à partir de 245 000 euros TTC T2 à partir de 255 000 euros TTC Corinne BOUFFORT : 06.08.47.94.30 - CBN9750