RENNES centre (rue de Lorgeril) Lumineux appartement type 3 pi?
Rennes 35000
0
Honoraires à la charge de l'acquéreur (Prix hors honoraires : 315000 euros).
AG IMMOBILIER-COMMISSIONS RÉDUITES PACE : (ACHAT/VENTE) : RENNES Centre-ville/proche mail (rue de Lorgeril)
Cette appartement vient d'être vendu par notre agence ! Si vous aussi vous avez un projet de vente ou d'achat n'hésitez plus, contactez nous! Nos estimations sont gratuites et nos honoraires (charge acquéreur) sont les moins chers du secteur (3.5%ttc) !!
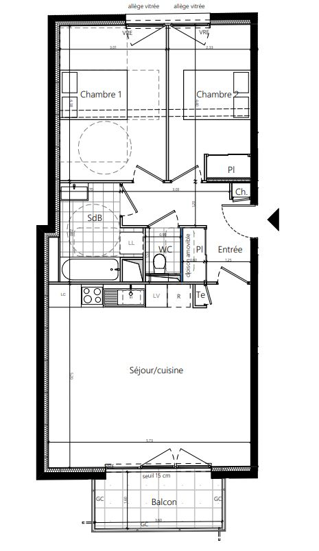
Notre agence est heureuse de vous présenter en EXCLUSIVITE ce lumineux appartement Type 3 de 77.2 m² à rafraichir + 2 balcons + garage fermé + cave en sous-sol Situé dans une petite rue calme (rue de Lorgeril) au sein d'une résidence construite en 1990, opportunité rare pour ce spacieux et lumineux Type 3 de 77.2 m² habitables situé au 3ème étage avec ascenseur profitant de deux balcons Ouest, d'une cave privative ainsi qu'un garage fermé au sous-sol de la résidence Cet appartement comprend : Une entrée avec placard, une lumineuse pièce de vie de 34 m² donnant accès au 2 balcons Ouest, une cuisine indépendante de 9 m², dégagement, 2 chambres (13.5m² et 9.6m²) dont une avec placard, une salle de bains (baignoire+ meuble vasque, un wc.
L'appartement profite également d'une garage fermé en sous-sol de la résidence ainsi que d'une cave située également en sous-sol ! Un bien rare sur ce secteur!
Honoraires d'agence réduits Prix HAI 326 940 (soit 315 000 net vendeur + 3.8% d'honoraires à la charge de l'acquéreur).
AG Immobilier Commissions Réduites Pacé 02.99.85.61.30 2 agences sur Rennes et Pacé à votre service Tous nos biens et + de photos sur www.agimmobilier.fr Les informations sur les risques auxquels ce bien est exposé sont disponibles sur le site Géorisques : www. georisques. gouv.fr
Nous recherchons en permanence pour notre large clientèle des biens à vendre sur l'ensemble des quartiers Rennais : Jeanne d'arc, Fougères, Beaulieu, les Gayeulles, Longchamps, Saint Laurent, centre-ville, centre historique, Saint-Hélier, Thabor-Sévigné, Colombier, Bourg l'Evêque, Saint-Martin, Chézy Dinan, Anatole France, Arsenal Redon, Motte Brûlon, Patton, Bellangerais, Lorient-Saint Brieuc, Villejean, Maurepas, Beauregard, Cleunay, La Courrouze. N'hésitez pas à nous contacter pour une ESTIMATION TOTALEMENT GRATUITE.
Honoraires inclus de 3.8% TTC à la charge de l'acquéreur. Prix hors honoraires 315 000 . Dans une copropriété de 121 lots. Aucune procédure n'est en cours. Classe énergie C, Classe climat C Montant estimé des dépenses annuelles d'énergie pour un usage standard : entre 900.00 et 1250.00 sur les années 2021, 2022 et 2023 (abonnements compris). Les informations sur les risques auxquels ce bien est exposé sont disponibles sur le site Géorisques : georisques.gouv.fr.