RENNES NORD - MAISON 4 PIECES SUD 92.10M² - TERRAIN 144M² - STATIONNEMENTS
Rennes 35000
0
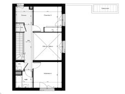
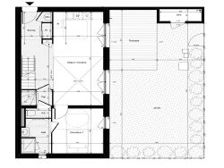
RENNES NORD - MAISON 4 PIÈCES SUD 92.10M² - TERRAIN 144M² - STATIONNEMENTS Idéalement implantée au nord de Rennes, cette maison profite d'une situation privilégiée alliant accessibilité et qualité de vie. Elle offre un accès rapide à la voie rapide et au centre-ville, tout en bénéficiant d'un environnement pratique et recherché, à proximité immédiate des commodités, des commerces et des transports en commun. Cette maison de 4 pièces, développant une surface habitable de 92,10 m², a été conçue selon les principes de l'architecture bioclimatique, privilégiant confort et performance énergétique. Sa construction en ossature bois, son triple vitrage et son orientation plein sud garantissent une excellente luminosité ainsi que de réelles économies d'énergie. Le rez-de-chaussée s'ouvre sur une entrée avec placard, menant à un séjour-salon avec cuisine ouverte baigné de lumière. L'ensemble donne accès à une terrasse et à un jardin privatif d'une superficie de 53,10 m². Ce niveau comprend également un dégagement, une chambre offrant une vue agréable sur le jardin avec salle d'eau attenante, ainsi qu'un WC indépendant. A l'étage, un dégagement dessert un espace bureau, deux chambres, une salle de bains et un second WC indépendant. Les prestations sont complétées par un abri de jardin ainsi que deux places de stationnement privatives. Prix promoteur - frais de notaire réduits Les informations sur les risques auxquels ce bien est exposé sont disponibles sur le site Géorisques : www.georisques.gouv.fr Copropriété de 22 lots - dont 22 lots habitation.(Pas de procédure en cours).