RENNES NORD ST MARTIN - Appartement 2 pièces 38.69m² - balcon de 8.81m² - 1er étage - stationnement
Rennes 35000
0
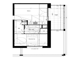
RENNES NORD ST MARTIN - Appartement 2 pièces 38.69m² - balcon de 8.81m² - 1er étage - ascenseur - stationnement en sous-sol. A quelques pas des Prairies Saint-Martin et du canal, dans un quartier résidentiel paisible et verdoyant, bénéficiant d'une excellente desserte (bus, pistes cyclables, accès rapide au centre-ville et aux grands axes) ainsi que de la proximité des commerces et restaurants, découvrez ce charmant appartement 2 pièces de 38,69 m². Situé au 1er étage d'une résidence contemporaine avec ascenseur, il se compose d'une agréable pièce de vie avec cuisine ouverte, prolongée par un balcon de 8,81 m², d'un dégagement, d'une chambre confortable et d'une salle d'eau avec WC. Un bien alliant confort, fonctionnalité et cadre de vie privilégié. Stationnement en sous-sol sécurisé. Prestations soignées et confort optimal. Conforme à la réglementation environnementale RE2020, la résidence garantit performance énergétique et qualité de vie durable. Les informations concernant les risques liés à ce bien sont disponibles sur le site Géorisques : www.georisques.gouv.fr Copropriété de 55 lots - dont 55 lots habitation. (Procédure en cours). Charges annuelles : 561 euros.