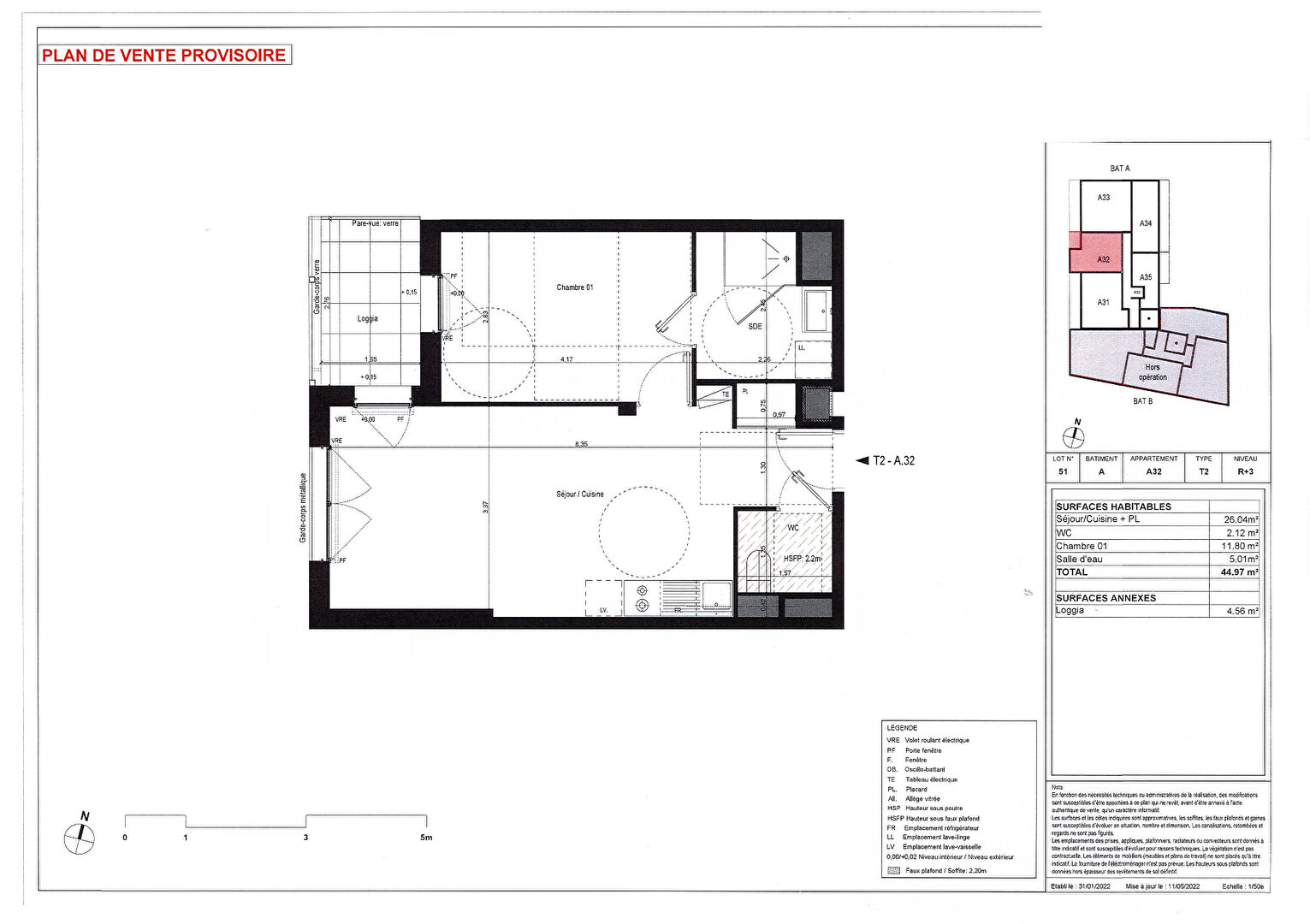
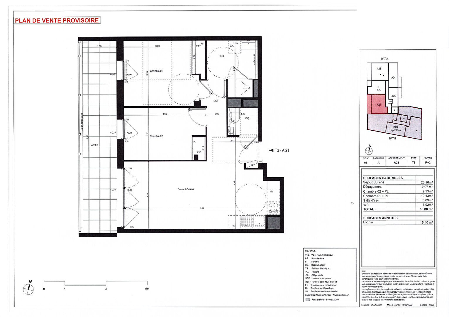
RENNES quartier Jeanne d'Arc-Beaulieu - T3 de 58 m2 avec Loggia et parking
Rennes 35700
0
COGIR Neuf vous propose : RENNES quartier Jeanne d'Arc-Beaulieu - A proximité immédiate du centre-ville et de la faculté de Beaulieu, venez découvrir cette Résidence rayonnante de 26 appartements pour habiter ou investir. Vous y trouverez cet appartement T3 de 58 m² au 2 eme étage comprenant : un séjour/cuisine de 26 m² qui donne sur une spacieuse loggia de 15m2 exposée Ouest communiquant directement avec les deux chambres du bien, un WC individuel et une salle d'eau. L'appartement dispose également d'une place de parking. Fiscalité : RP / PINEL T2 à partir de 275 000.00 euros TTC T3 à partir de 349 000.00 euros TTC Corinne BOUFFORT : 06.08.47.94.30 / CBN9838